It wasn’t so long ago that Old City was a hotbed for hot plates, as it were, with multiple restaurant supply businesses operating out of the neighborhood. Several of those businesses have closed over the years, but Swift Food Equipment at 148-56 N. 2nd St. has remained in the game. This business has been operating for about a century, but the signs in the windows now indicate that they’re getting ready to close their doors. This isn’t news, really, as we’ve seen several development proposals for this address over the last few years.

In 2018, the Historical Commission considered a proposal for a 19 story mixed-use project on several of the Swift properties. This project called for maintaining the historic building at 152 N. 2nd St. as the lobby for a building that would have included condos and hotel space. Unsurprisingly, some neighbors and members of the Commission weren’t too keen on the height, with the Commission ultimately giving the project the thumbs down.

A significantly scaled down project was proposed next, with a similar footprint but much less height. The full Commission approved the proposal in September of 2019, but it never moved forward. Perhaps this had something to do with the whole global pandemic thing that happened a few months later?

Finally in 2022, developers pulled permits for “The Ben,” a six-unit condo building at 160-64 N. 2nd St., on an even smaller footprint. Despite the smaller building, we were excited that something was happening here after so much back and forth. But with that modern building now completed, the under-development of the rest of the block is even more visually apparent. Soon though, things might change in a material way.

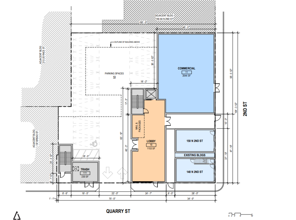
Developers are seeking permission from the Historical Commission for a new project that would redevelop the rest of this block, from Quarry Street to The Ben. If approved, this six-story project, designed by Gnome Architects, would include 34 units, about 2,000 sqft of commercial space, and 13 parking spots. While the developers would maintain portions of 148 and 150 N. 2nd St. (the two buildings closest to the corner of 2nd & Quarry), the are hoping to demolish the historic building at 152 N. 2nd St. and a non-historic one-story structure. Interestingly, they would also add a 3rd story to 148 N. 2nd St., recreating a space that was removed at some point between 1915 and 1960.



While we’re delighted to hear that development might move forward here, it’s far from a done deal that the Historical Commission will sign off. Yes, 152 N. 2nd St. is in bad shape, structurally. But partial or full demolition requires that developers clear an incredibly high threshold, and members of the Architectural Committee weren’t convinced that said threshold was cleared. Not only did the committee indicate a desire that the developers save the structure, but also didn’t love the size of the proposed building, especially along Quarry Street. It’s quite possible there will be updated plans before the full Commission hears this case in a few weeks.



If the Historical Commission eventually approves this conceptual plan, the development team will have to come back for final approval with a more detailed design plan. Given the supplemental material palette concept submission, figure the project would look to match the aesthetic of the neighborhood’s legacy buildings, as opposed to the more contemporary structures that have gone up nearby more recently. But as we’ve seen on this block before, conceptual plans don’t always come to fruition. So we’ll hope that something resembling this project can get eventually get buy-in from the Historical Commission, though we suspect we’re a few iterations away from that point.


Leave a Reply