2nd Street in Old City might be known for its restaurants, but a person that wants to open such a business in this pocket of Center City maddeningly requires permission from the City’s zoning board. Because these properties sit within the Old City Residential Area of the Center City Overlay District, a special exception is required for opening a new restaurant. Yes, you heard that right.

This brings us to the Tun Tavern. We previously told you about this historic pub, which stood east of Front Street between Chestnut & Walnut from 1686 until its destruction by fire in 1781. This restaurant is famously known as the founding location of the United States Marine Corps, so it represents a major part of US history. About a year ago, we told you that the Tun Legacy Foundation had purchased the surface parking lot at 15-25 S 2nd St. and had a plan to build a replica of the Tun Tavern on the site.



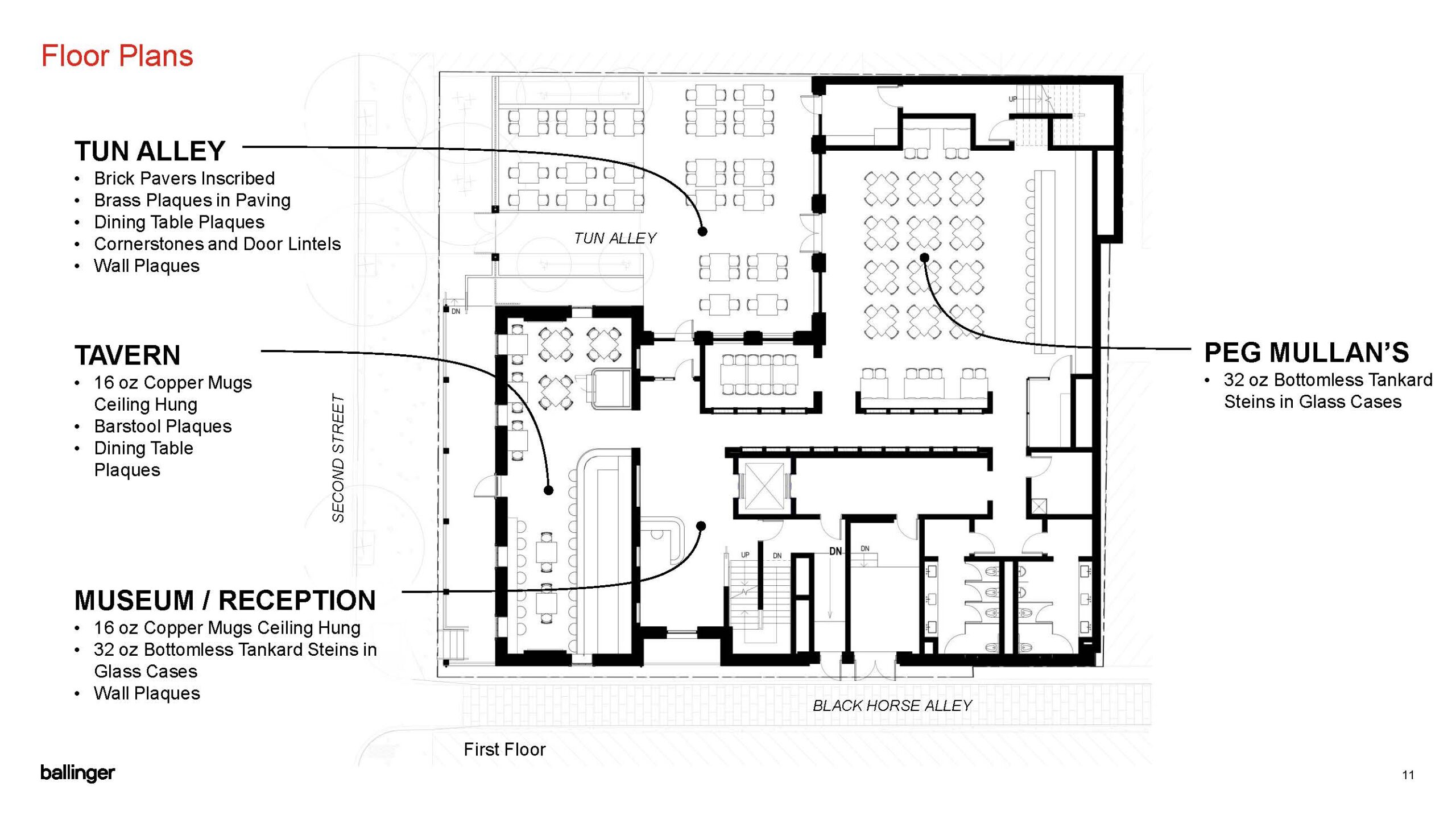
The project, known as The Tun™, will include three floors, an outdoor courtyard, and 170 seats, and will have a look that resembles buildings of the 17th and 18th centuries. There will, by definition, be some creative license in the design – not only are there no photographs of the original tavern, but there are not even any drawings that were made while the building was still standing. Perfect historical accuracy doesn’t seem terribly important here, given that the new building will be a couple blocks away from the original location. This is necessary, since the original location got buried by I-95.

But like we said, the project needs ZBA approval, specifically a “special exemption.” The threshold for granting a special exception is lower than for a full variance, so with with the support from the Old City District and non-opposition from the councilmember it seems pretty likely the non-profit will soon have permission to proceed. A minor fly in the proverbial ointment – at the zoning hearing on Wednesday, an attorney representing a nearby recently constructed apartment building raised concerns about noise generated by the restaurant. As we can see in the plans from Ballinger, the tavern will have outdoor dining in the Tun Alley, but this seating will be largely set back from the front of the lot, unlike sidewalk dining.
The attoney represented the owners of The Amble, the 61 unit building with ground floor retail, which is located across the street at the corner of 2nd Street & Trotters Alley. We first told you about this project back in 2021, and last checked in mid-construction in the summer of 2023. The building is now finished, and provides a much more typical project that we’d expect to see in Old City. Incidentally, this building also replaced a surface parking lot.

With the two parties apparently close to reaching an agreement to mitigate any possible noise issues from the new tavern, we feel confident the ZBA will soon grant the desired special exception. Let’s hope the board acts fast, as the foundation hopes to announce a major construction milestone in time for the 250th birthday of the Marine Corps this November and America250 in 2026, with successful fundraising efforts over the coming months. It’s an aggressive goal, and it would be all the more achievable if not for the added steps required of businesses that want to operate in this part of town.


Leave a Reply