Today we are taking the next step on our N. Front & Diamond St. journey after just visiting a recent demo, where a 31-unit mixed-use building at 2112-16 N. Front St. is proposed. Now we are making our way to the east side of the street to 2043-51 N. Front St., which technically sits in an entirely different neighborhood, moving from South to East Kensington. Let’s zoom in again on the corner so we can get reacquainted to the area.

This property is a triangular-ish parcel which used to serve as an auto repair shop and sits in the shadow of the wonderfully restored Harbison’s Dairy project across Dreer Street. As you can see, not only has the Dairy been updated, but there’s been all sorts of other action here over the last several years as well.

2043-51NFront-03
View of 2043-51 N. Front St. in the past, with Harbison's Dairy in the background
2043-51NFront-01
Current view shows the renovated Harbison's and the corner property now under construction
2043-51NFront-02
Another view of the active site

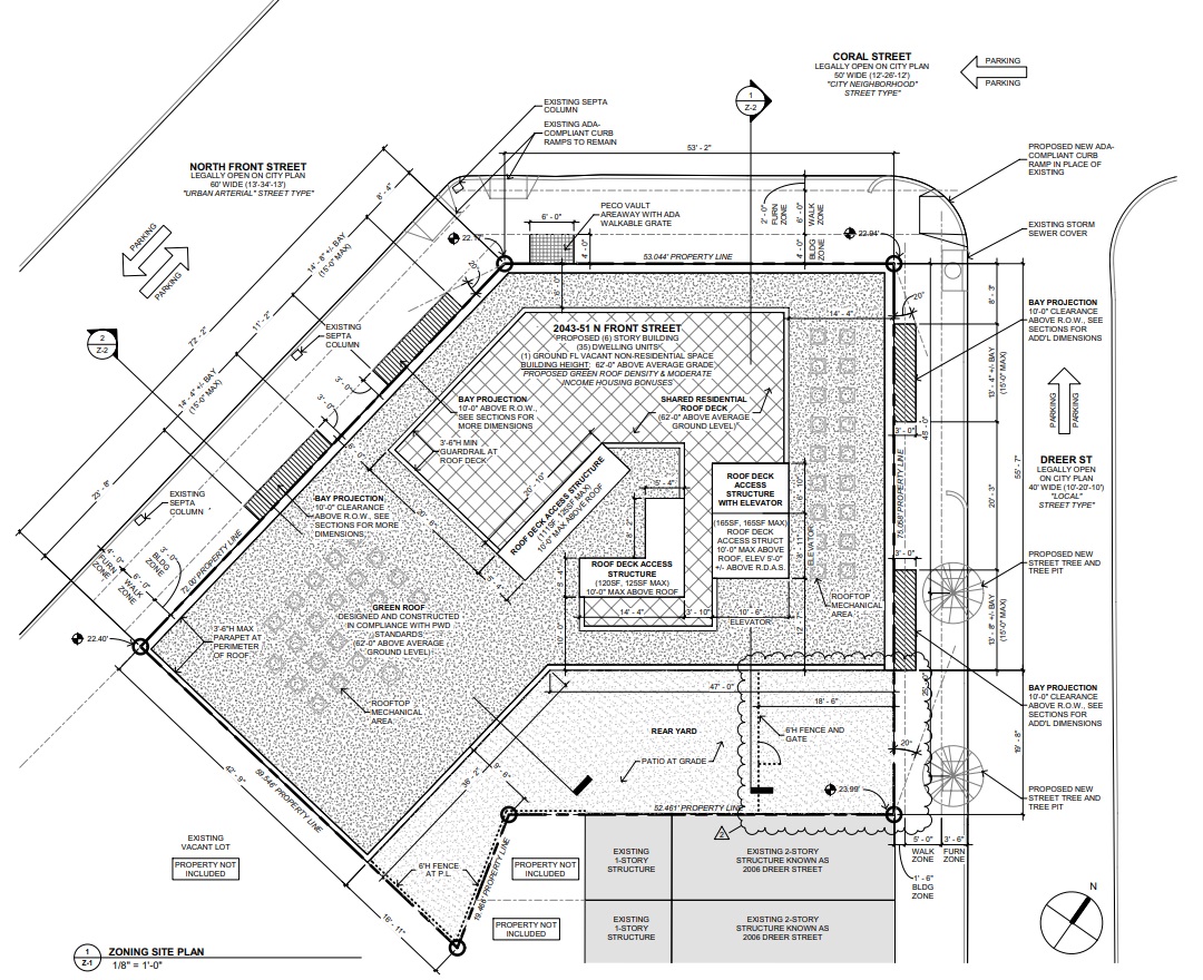
Excitingly, a six-story building coming to us from Canno Design is slated to rise on this tricky corner parcel adjacent to the tracks. Look for 35 units, which is more than typically permitted due to both green roof and moderate-income bonuses – a win-win-win in our mind. Only zoning drawings are available, but we’d imagine we’ll see something pretty sharp and classic based on Canno’s projects that are going up everywhere you look across the city. As you can see from the design, the footprint will have an unusual shape, though we are still a bit intrigued by the vacant “non-residential space” wording. Does this mean it will be commercial? Non-profit? Amenity space? Our bet would be commercial, but we wouldn’t be shocked to see a ground floor gym for residents lighting up the corner at night either.

2043-51NFront-04
Site plan shows how building will be set on the polygon-shaped lot
2043-51NFront-05
Elevation drawings provide an idea of the massing to expect

Overall, this seems like a very good outcome for this CMX-2.5 zoned property. Optimizing density while including zero parking for this transit-oriented development are always things that put a smile on our face. So, we’re now up to 60+ units just for the two projects we’ve covered on our mini tour of the corner. Let’s see if we can add another one (or technically, two) to the fold for the final round in our trilogy. Until next time…