In Pennsport

Over the summer, we visited the Mount Sinai Hospital site at 4th & Reed and speculated that development was finally on the way after years of vacancy and several proposals that never came to pass. In contrast to earlier plans from other developers, the Concordia Group was looking to demolish the empty
Read More
A little over five years ago, a fire struck at 2001-03 S. 4th St. and was so devastating that the large apartment building had to be demolished. We checked in on the parcel about half a year after the fire and it was a large vacant lot. Years later, it
Read MoreSt. Casimir School Residential Conversion Now Moving Forward
21 September, 2015 | No Comments | Pennsport
It's been years in the wilderness for the former St. Casimir school at 333 Earp St., a building that's been sitting vacant for quite some time. We last checked in on this property about a year ago, when were telling you about plans to convert a former convent/rectory on Wharton
Read More
A single vacant, blighted building can bring down the rest of the block. And when such a building stretches over an entire city block, it's lousy for the whole neighborhood. Such has been the case with the former Mount Sinai hospital at 4th & Reed, closed since 1997. Since the
Read More
It's been over two years since we first shared the news that the former Saint John the Evangelist Episcopal Church, located on the northwest corner of 3rd & Reed, would be demolished in favor of twelve townhomes. The beautiful church had stood for over 120 years and was brought down in about a
Read More
Who wouldn't want to live at 4th & Tasker, right across the street from the wonderful Dickinson Square Park?Dickinson Square ParkIt seems that several developers are wagering that there are no shortage of people who are enthused about the idea. We've already covered several projects in this general vicinity, and
Read More
For quite some time, Campenella Construction made their home at 1601 S. Columbus Blvd., and in more recent years their property was available for sale. For the last couple of years however, this site has been ground zero for a war of sorts between AAA, Pennsport Civic Association, the Planning
Read More
From 1866 until last year, 240 Greenwich St. was home to a building that was originally the Greenwich Street Church and most recently the Khmer Palelai Buddhist Temple. The property changed hands in late 2013 and the new owners tore down the historic, "non-historic" building.In the past, view from Tasker StreetConsidering
Read More
The other day, a friend of ours that lives in Pennsport shot us a text with an image of a zoning notice at 1422 S. Front St., an address that rang a bell. Then it hit us. We wrote about this property over a year ago, blasting out to anyone
Read More
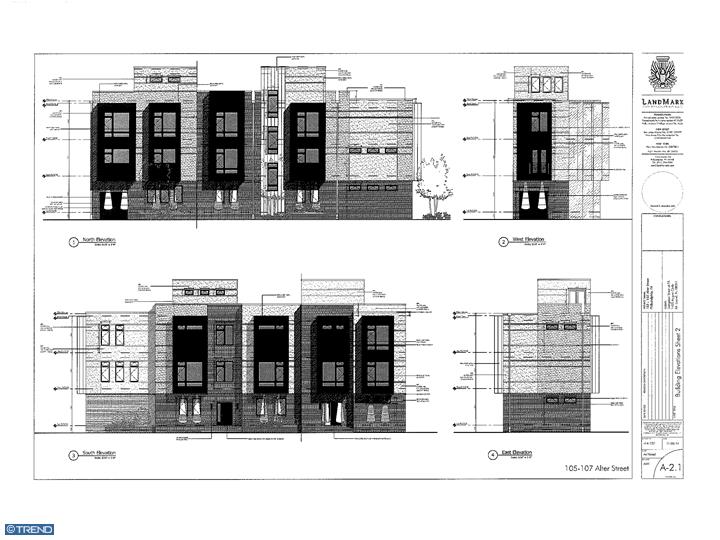
It was over three years ago that we first brought the north side of the 100 block block of Alter Street to your attention, but the stalled construction has been bogging down the block for almost a decade. From what we can tell, the Stein & Silverman Family Partnership started
Read More