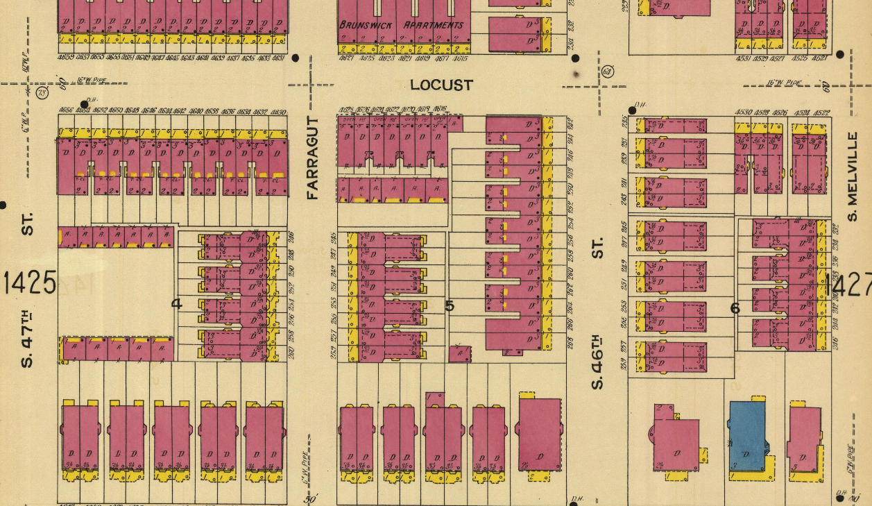
After we told you last week about a North Philly project where apartments will replace a series of garages, today we have news of a project in West Philadelphia taking a similar approach. The City recently issued a building permit for 17 units at 239-43 Farragut St. in Walnut Hill, on a site that’s been home to a row of garages for many years. With the garages already demolished, we’re eagerly waiting to see some shovels in the ground for this midsized apartment building.

Screenshot-2025-09-08-10.30.05-PM
These garages dated back to before 1923!
Screenshot-2025-09-09-11.59.40-AM
View from Farragut Street last spring

The location of this property within the Mixed Income Neighborhoods Overlay District adds a layer of complication but also provides some benefits in terms of zoning. The complicating factor, which has limited development in areas that fall within this overlay, is a requirement that 20% of the units be offered at “affordable” rental rates. This has made underwriting these kinds of projects extremely difficult, especially with larger projects. Perhaps it’s the fact that this project is on the smaller side, with 4 of the 17 units offered at lower prices, that has allowed the developers to actually consider moving forward.

IMG_4866
Current view of the property

Though the 4 affordable units will create a financial challenge for the developers, they will receive a couple benefits in return. Notably, they’re able to build seven feet taller than they could if the building was located outside the overlay. Also, they’re able to build a denser project than they could otherwise. It’s safe to say that the added height and density are what is allowing the project to proceed, despite the affordability component. Of course, the developers could have gotten more density and greater height by going to the ZBA, but that’s a risky proposition that many developers aren’t too keen to pursue.

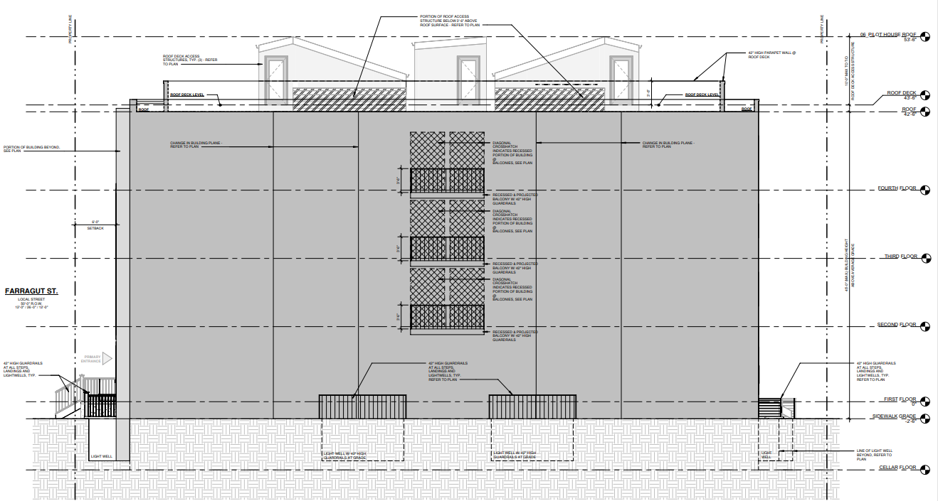
We don’t have any pretty renderings, just elevation drawings from Kore Design Architecture which show the building’s massing and a few details. Those details include balconies for some of the units, light wells which seem to indicate basement living, and three pilot houses providing roof deck access. The deck should have some pretty great views, surrounded by two and three story buildings, and the building’s elevator will go all the way up to the deck, providing access to this amenity for everyone in the building.

Screenshot 2025-09-08 9.02.50 PM
The side of the building, including the partially projecting balconies

Despite the historic auto-centric use of the property, its zoning has no parking requirement. That might seem like a no-brainer with the 46th Street MFL Stop a short stroll up the block, but we’ve seen plenty of buildings of this size offer parking despite even closer proximity to mass transit. Only a few weeks ago we discussed the how parking minimums near the El station in Fishtown was limiting development, and fortunately that’s not coming into play here. It’s impressive enough that this project is seemingly moving forward in the Mixed-Income Overlay District, we suspect that parking minimums would have been a bridge too far.