As North Philadelphia neighborhoods developed in the late 19th century, the landowners, industrialists, and home builders who turned these blocks into an interconnected web of factories and rowhomes probably weren’t too concerned with how their choices would impact us today. But a recently approved project at 3428 N 18th St. is a great example of how decisions made lifetimes ago can give today’s architects a splitting headache.

Screenshot 2025-09-10 At 12.45.43 PM
This property sure is something

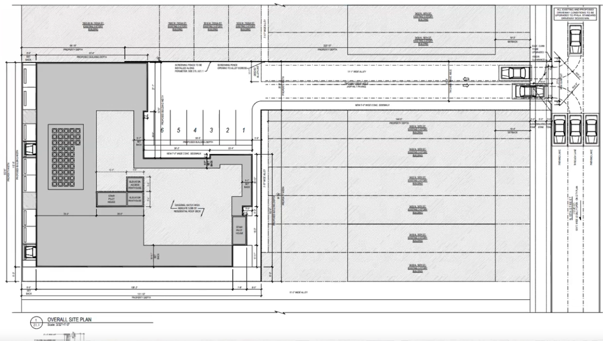
Despite running intermittently through the neighborhood, N. Gratz Street disappears between Ontario and Tioga Streets. With mostly typical twins and rowhomes constructed along the perimeter of the block, there’s a sizable void in the middle that measures over 15K sqft in size. An auto repair shop operated here at one point, but since the 1950s there have been low-rise garages on this property, rented individually.

Download-2025-09-04T232634.292
Access point to the property from 18th Street

The garages have apparently been a source of traffic and noise over the years, which is probably why neighbors were open to something new. And that new thing is a four-story building with 63 apartments and 18 parking spaces. As the property is zoned for single family homes and is also a flag lot, the project triggered a number of refusals and needed approval from the ZBA.

Screenshot 2025-09-04 10.33.40 PM
A dusk rendering of the parking in front of the lobby
Screenshot-2025-09-04-10.20.46-PM
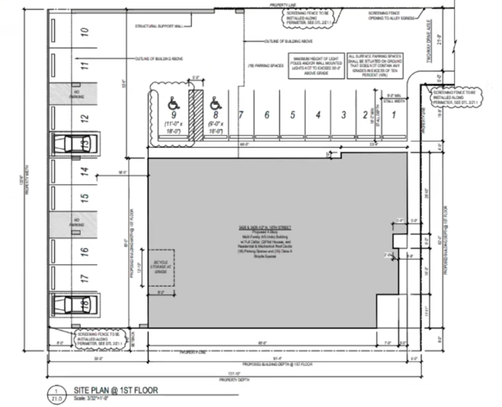
Site plan shows drive-aisle access from 18th Street
Screenshot-2025-09-04-10.18.27-PM
Most of the parking will be hidden on the first floor but a few spots will sit in front of the lobby entrance

The plans provided by 24/7 Design show an L-shaped building with a dozen studios, 24 one-bedrooms, and 7 two-bedroom units. The first floor will include the building’s lobby, four units, and a small co-working space. But most of the first floor space will be taken up by parking spots, with about 2/3 of the spots located underneath the rest of the building while the rest sit right outside the entrance. The current driveway on 18th Street will be expanded to create a two-lane drive aisle and a pedestrian walkway. The widened 20′ driveway will allow cars to enter and leave simultaneously, and crucially will also allow a fire truck to access the building.

Screenshot 2025-09-04 10.35.58 PM
The building's pilot house & elevator tower will provide access to the roof top deck for all residents, but triggered the height refusal from L&I

In their discussions with the West Allegheny Civic Association, the development team discussed targeted rents of only $1,100 to $1,400/mo. Being able to charge modest rents without subsidies might explain in part why we’ve started to notice more projects popping up in Tioga and Nicetown of late, though proximity of Temple Hospital is likely the most significant driver. With Philadelphia’s “Eds and Meds” economy showing few signs of changing anytime soon and the availability of vacant land in this part of town, figure this won’t be our last visit to this changing area.