Parkside is one of the best looking and positioned neighborhoods in West Philadelphia, fronting the verdant Fairmount Park with some of the best examples of Victorian architecture in the entire city. However, not every property on this stretch is a prototypical example of period-specific design. Unfortunately, there are several empty lots near the intersection of Parkside & Girard Ave. on the eastern side of the neighborhood. But thankfully, there are three properties that will be going through some major changes soon.

WGirardMultiFam
An aerial shows the three properties to be developed

We are excited that each of the properties above just received zoning permits for lot consolidation, with all three lots having an eye toward multifamily buildings, two buildings with 29 units and one with 31 for a total of 89 units across these two blocks. As you can see from the photos below, none of these properties are currently teeming with beauty or utility.

3912Girard
3912-16 W. Girard Ave., the easternmost property
4012Girard
4006-12 W. Girard Ave., looking similar to the last property
4020Girard
4020-26 W. Girard Ave., rounding out our fenced lot round-up

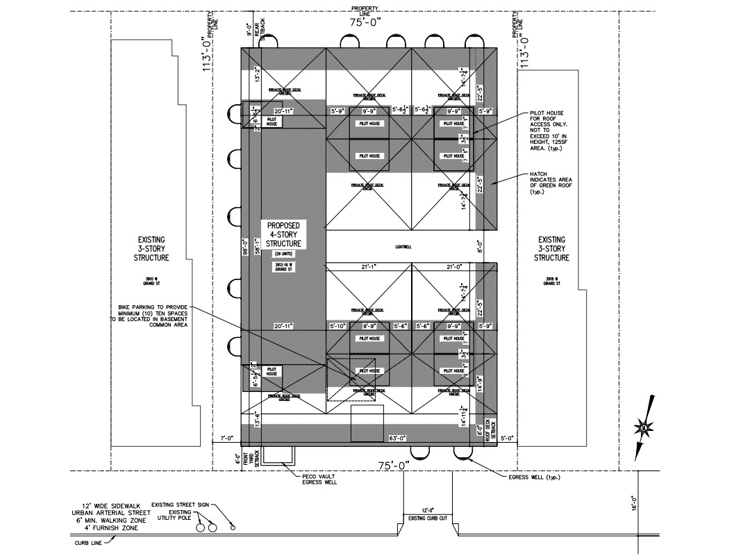
Not the most inspiring, right? While light on details, a separate recently issued zoning document provides some additional info. For the property at 3912-16 W. Girard Ave., which is zoned CMX-1 (unlike the CMX-2 zoning for the other lots), a trip to the Zoning Board of Adjustments led to a variance to build a four-story building on the property, with 29 units coming from Cadre Design. Though we can’t be certain, we’d be willing to wager that the two western properties get a similar treatment, with brick, masonry and metal paneling making up the facade along Girard.

3912Girard-01
Site plan shows off shape of the building...and the private roof decks
3912Girard-02
Brick, paneling and glazing make up a majority of the facade, along with decorative balconies

This seems like a big-time improvement for this stretch, which can feel a bit desolate at times, as the park across the street isn’t exactly teeming with residents. But this isn’t the only action in the area close to the Clayborn Lewis Community Center, which has made a resurgence since a shooting in 2020. Ujima Developers also have big plans for the area, with senior housing set to join a STEM co-working facility on the same several blocks.

Ujima-developers-holistic-equitable-development-site-map-1030x666
A look at even more big plans for the area

We are digging the reinvention of this area, especially as many of the projects we’ve covered close by are either rising on empty lots or adding density to former industrial properties. There are so many positives to this area (we see you Shofuso) that it is truly wonderful seeing the built environment catch up to the premier location of this gorgeous neighborhood.