As you probably already noticed, the Center City Italian Bistro closed back in May. According to a post on Foobooz from a few months back, the plan for the space is for an art studio as well as Terra Hall, a dining hall for UArts students that will not be open to the public.

Demoed inside

UArts’ initial timeline had Terra Hall opening this Fall, but we’re not holding our breath. The space is currently stripped down to the walls, and work does not seem to have begun on the dining hall that is to come.

Blurry image of the current condition of the space

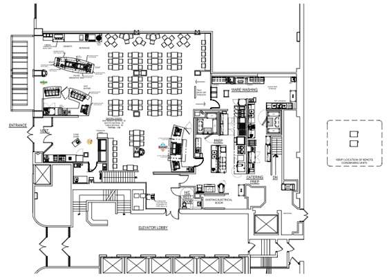
Floor plan, from HMC architects

The closing of Italian Bistro was rather abrupt, and many locals who patronized the place did not see this coming; neither did the staff who found out the day before that they were soon to be unemployed. Owners John and Greg Whiting, who owned the Center City restaurant for 21 years, assured the public that they would be reopening in Center City during the summer, but we’ve heard no news on any future reopening or new space. We’ll be keeping our eyes peeled to see whether Italian Bistro ever resurfaces as well as what progress UArts makes with their former space.

–Kaitlin Bostwick