In 2001, then Mayor Street launched the Neighborhood Transformation Initiative (NTI), which resulted in the demolition of over ten thousand vacant buildings across Philadelphia. As a result, the City took possession of many of those properties, aggressively swelling the list of City owned real estate. That list remains painfully long today. Another product of NTI was the creation of vast swaths of vacant land across some of the city’s lowest income neighborhoods. Some of those vacant lots were redeveloped relatively quickly, but others lingered as publicly owned vacant land for decades. Here’s a snapshot of a section of North Philadelphia which illustrates this phenomenon:


You can see in the images above, a collection of single family homes were built in this area, mostly of the free standing or twin variety, between 2004 and 2020. Many of these affordable homes were constructed by Asociación Puertorriqueños en Marcha (APM), a local Latino-based health, human services, community and economic development non-profit. This organization has built hundreds of affordable units in North Philadelphia over the decades, both for sale and for rent. In 2022, APM completed Camino de Oro, a senior housing project at 728 W. Berks St., the northern 1/3 of the nearly vacant block bounded by Berks, Montgomery, 8th, and Franklin. Not only do we imagine this was a welcome project for the folks who eventually moved here, but we have to think that neighbors were delighted that a large vacant lot was on the outs.

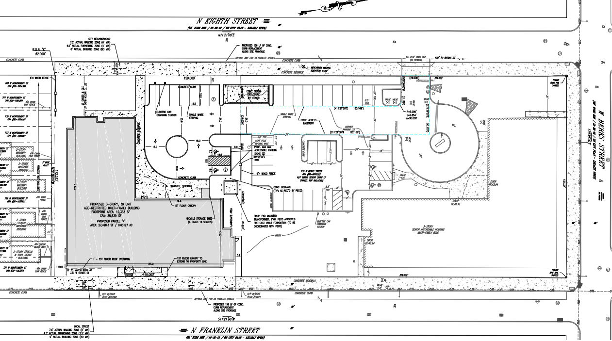
Though Camino de Oro filled in a good chunk of this vacant block, there’s still plenty of vacancy these days. But we’re pleased to share that the rest of the block should soon get redeveloped, once again at the hands of APM. Camino de Oro II may sound like a summer blockbuster sequel, but it’s a sister project to the original, which will add another 38 units of senior housing to the block, along with 6 more parking spots. It appears the second Camino de Oro will share a parking area with the first building, and the site layout gives us the sense that the two buildings will feel like they are part of the same overall campus.



Like the first building, this project was financed with a combination of federal and state tax credits, built on formerly City owned land, and features dedicated senior housing. From the elevations provided by PZS Architects, it looks like the new building will look pretty similar to the first building, with a lot of emphasis on breaking up the massing of the facades. The look will resemble many low-rise multi-family buildings going up nowadays, so we suspect passersby won’t even realize these are affordable units. We’d bet a lot of folks will just assume it’s more housing for Temple students.
In the abstract, we are thrilled by this new project. That being said, we still have some notes. Really, it’s just one note, specifically that the two Camino de Oro buildings are only providing a combined 82 units on over 1.5 acres of vacant land. These projects could have easily provided more density by maintaining the exact same design but simply building four-story buildings. Alas, such a plan would have required a zoning variance, and we’ve seen affordable projects run into problems in that department of late. Alternatively, the site could be laid out more efficiently, perhaps with less parking or underground parking, to allow for a larger building footprint on the site.
All of this being said, underwriting affordable housing projects is profoundly difficult, and we have to give APM their roses for moving these projects forward. This organization has transformed large sections of this neighborhood over the years, changing lives and improving a part of the city that was long ignored by market rate developers. We look forward to seeing the Camino de Oro sequel rise, and at the same time we’ll cross our fingers that a theoretical third installment will perhaps offer a touch more height, efficiency, and/or density.

Leave a Reply