Is there anything more fun than digging through zoning permits? Yes, but coming across an unexpected project is still a rush, no matter how you slice it. Case in point: brand new plans for a project north of Temple University Hospital at 3439 N. 17th St. at the site of a former one-story building that was home to Hero Community Center event space. After receiving permits for demolition last year, brand new zoning permits hint at what’s to come.

3439N17-02
An aerial shows the property in question
3439N17-01
Hero Community Center in the past, slated for demo

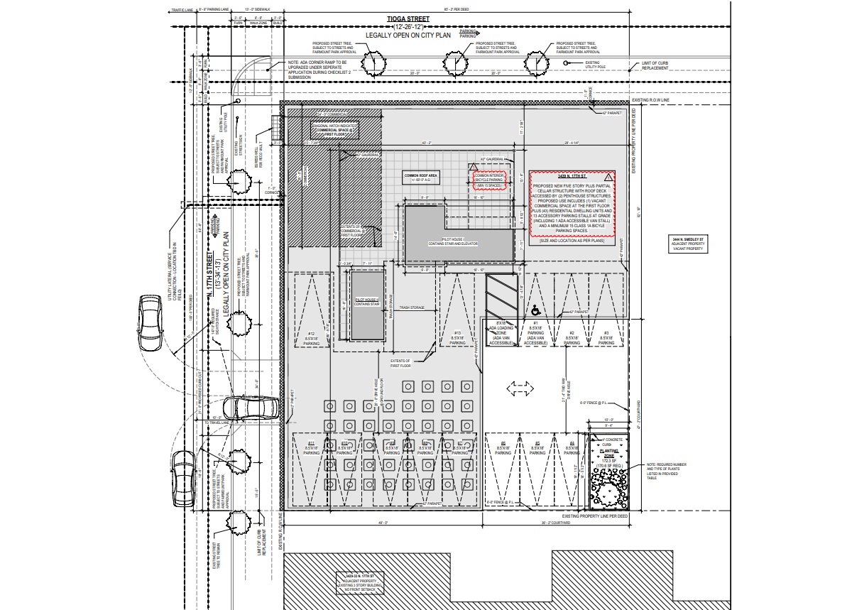
What’s coming here is quite a bit bigger – and much more residential – than before. A 43-unit, five-story building from Gnome Architects just got the OK, zoning-wise. Details on the design are still a bit fuzzy, but we know for certain that a commercial space will take the ground floor corner at 17th & Tioga, with surface parking for 13 cars and 15 bicycles also part of the mix. A roof deck will top the design, bringing several dozens of units to CMX-3 zoned site.

3439N17-03
Zoning site plan shows the layout of the building, with parking access from 17th
3439N17-04
An elevation drawing shows the upper floor units over ground level parking/commercial

While you may be somewhat surprised to see a project of this scale proposed here, there’s actually an even larger project proposed just a block away. Just next to the Tioga Trust Company, 90 senior units are proposed for a long sliver of land. Suffice to say, this is quite the change for this small section of North Philly.

1708Tioga-00b
Another aerial shows the tree-covered sliver of land with the former Hero in the background
1708Tioga-00c
An aerial of what's to come

While people will understandably be sad at the loss of an events center and some mature trees, we are going to posit that seeing this type of investment in a disinvested area is a good thing. And who knows, hopefully more people living in this neck of the woods will encourage another gathering space to pop-up to suit the needs of all the new neighbors.