North American Street in South Kensington is undergoing a slow and uneven transition before our eyes. This has historically been an industrial corridor, so much so that there was once a rail line running down the middle of this extra-wide street. With South Kensington emerging as an attractive neighborhood for development as Northern Liberties and Fishtown have exploded, we’ve seen a number of projects pop up along North American Street, some of which have been rather large. Take, for example, the Luxe and the Americana, two apartment buildings that have appeared on the 1700 block of N. American St. in the last few years, adding a few hundred units to the area.

IMG_3296
The Luxe, as seen from the corner of N. American & Cecil B. Moore

Immediately next door to the Luxe is 219 Cecil B. Moore Ave., which we’ve covered a couple times in the past. In the summer of 2016, we told you about plans for a four-story building at this location, with the possibility of half a dozen apartments over commercial or office space over commercial. At the end of 2017, new plans emerged for 10 units and no retail. Over the last seven plus years, nothing has happened here and the 3300 sqft property continues to sit vacant.

215-Cecil-b-moore-2024
Vacant lot at 215 Cecil B. Moore Ave.
Screenshot 2025-03-04 2.27.39 PM
The development site at the corner of Cecil B. Moore Ave and N. American St

But maybe not for long! Developers came to the Zoning Board of Adjustments recently, pitching a new mixed-use project with a Johnny Longhots restaurant on the ground floor and apartments upstairs. The casual restaurant serving cheesesteaks and hoagies will occupy most of the sidewalk frontage along both Cecil B. Moore Ave. and N. American St., with the entrance to the residential lobby on the eastern edge of the building, away from the restaurant’s entrance. But before any roast pork sandwiches can be served, the ZBA will need to give the go ahead.

468838295_122130079838384867_749314216127123825_n
Longhots: so hot right now
Screenshot-2025-03-04-2.54.14-PM
Project rendering
Screenshot 2025-03-04 2.52.37 PM
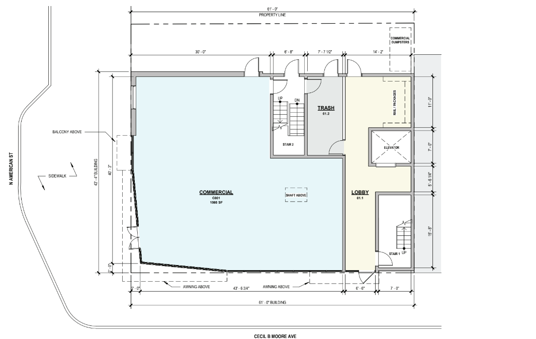
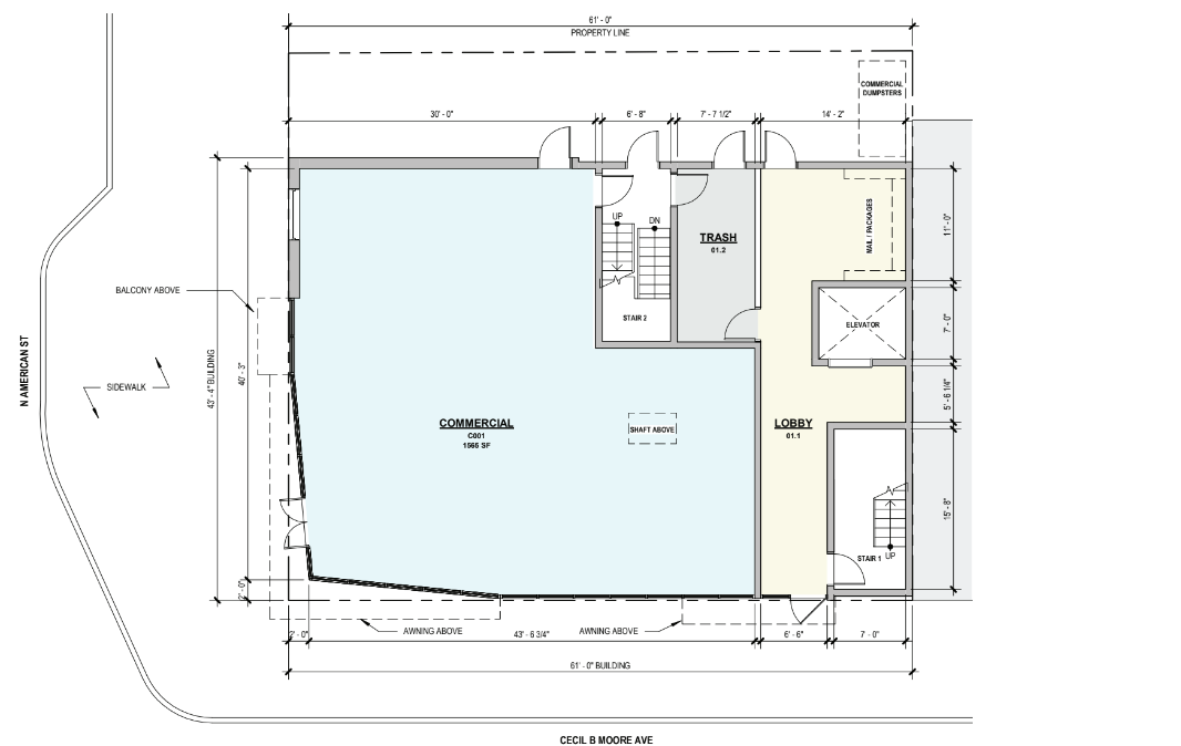
Floor plans for the ground floor

From the plans from Gnome Architects, we can see that this is a revised proposal, with the original plan calling for six stories of apartments above the restaurant. The final plans have chopped off the top story to accommodate the desire of the handful of neighbors who attended one of two community meetings for the building hosted by the South Kensington Community Partners. The loss of this square footage unfortunately results in a unit count reduction from 18 to 15. We would argue that there’s not much of a difference between a 6 story building and a 7 story building here, but hey, nobody asked us.

Screenshot 2025-03-04 2.56.09 PM
Renderings of the initial submission and the revised plan

The metal paneling, dark brick veneer, Juliet balconies, and large windows will match the contemporary look of many of the surrounding new buildings. Specifically, the articulation of the facade will break up the massing for the more visible perspectives of the corner building. However the blank wall along the eastern elevation will remain quite unadorned. Given that there’s a one-story garage, a small home, and a vacant lot just to the east, it’s quite possible we’ll see another project rise next door, covering this wall. Sadly, any project of size and scale would also require a variance.

IMG_3293
Looking at the properties to the east

Due to a technical issue relating to the refusal, the ZBA wasn’t able to rule at the hearing. L&I is working with the applicant to get that resolved, which shouldn’t take more than a couple weeks. Once that happens, it seems like the ZBA will offer the necessary relief to get this prominent address fixed up. This being the case, look for hoagies and cheesesteaks to brighten this corner sometime in 2027.