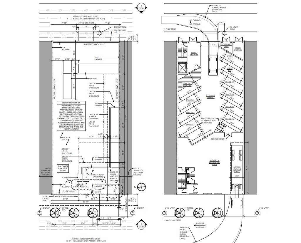
It’s not often that exciting things happen in the shadow of a self-storage facility, but at 1621 N. American St., that’s exactly what’s taking place. Sitting next door to the CubeSmart at N. American & Cecil B. Moore, a one-story garage will soon reinvent itself as something more exciting – for both the surrounding neighborhood, as well as for one very lucky caretaker. The view of this ICMX-zoned building doesn’t offer much from the eastern Phillips St. side either, where this structure may be more garage-y than The Stooges.



But that humble garage has a major change in store. In what we think is a clever use of the zoning code, the future of this building is unlike anything we can remember seeing recently. A recent zoning permit indicates the first floor will consist of a 2,000 sqft brewery/restaurant fronting American, with parking for 11 cars accessed via Phillips. The second floor will feature mostly office space, presumably for the brewery below, with the top two floors being earmarked as “caretakers quarters”, adding a by-right residential space where one typically would need a zoning variance. And what a residential space this will be, with the two floors making up nearly ten thousand sqft of space – a truly massive home.


We tip our hats for such a creative design approach, and we are thrilled to see yet another active use for the frontage along N. American St., which is changing by the day. You have to look no further than a block to the south to see such change, where 1525 N. American St. is now close to wrapped. After checking in here almost exactly a year ago, Ray Philly is looking quite stunning as it nears the finish line. Six Acre Capital is the developer for this 110-unit project, which will feature ground-floor artist studios in addition to a spate of amenities for residents. This design from Leong Leong in collaboration with local firm HDO Architecture is a gorgeous addition to the area, with the textured brick and terracotta finishes adding elevated materiality rarely seen even in the city’s toniest corners.



Will people be lining up to pay $3,400 to live in a two-bedroom unit here? We’re cautiously optimistic, and a brewery in the plans just up the block certainly won’t hurt when it comes to filling these units. And once all those units fill up, the caretaker’s quarters above the brewery will have plenty of room for sleeping a couple dozen or so of your closest friends.


Leave a Reply