It’s not so unusual for a property to come before the Historical Commission multiple times in the months and years after initially securing approval. Relatively minor modifications could be sufficient to trigger reconsideration. Or as we saw recently with the former St. Laurentius site, changing circumstances may result in dramatic changes to a project. Looking at this month’s agenda for the Commission’s Architectural Committee, we spied a property that somehow falls into both categories.

Saint Peter’s School, located at 317 Lombard St., secured approval from the Historical Commission back in 2019 when they proposed a new building immediately next door to the east, replacing a surface parking lot owned by the similarly named but un-affiliated St. Peter’s Church. The project, which was promoted as a partnership between the school and the church, went through some changes, returning to the Historical Commission in 2021 and again in 2024, getting approved each time. Much as we love surface parking lots in Center City, we were very excited to see this project come to fruition.

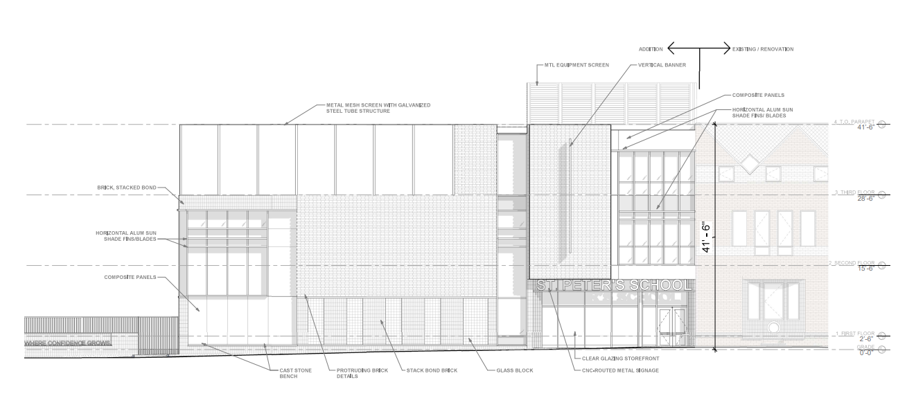
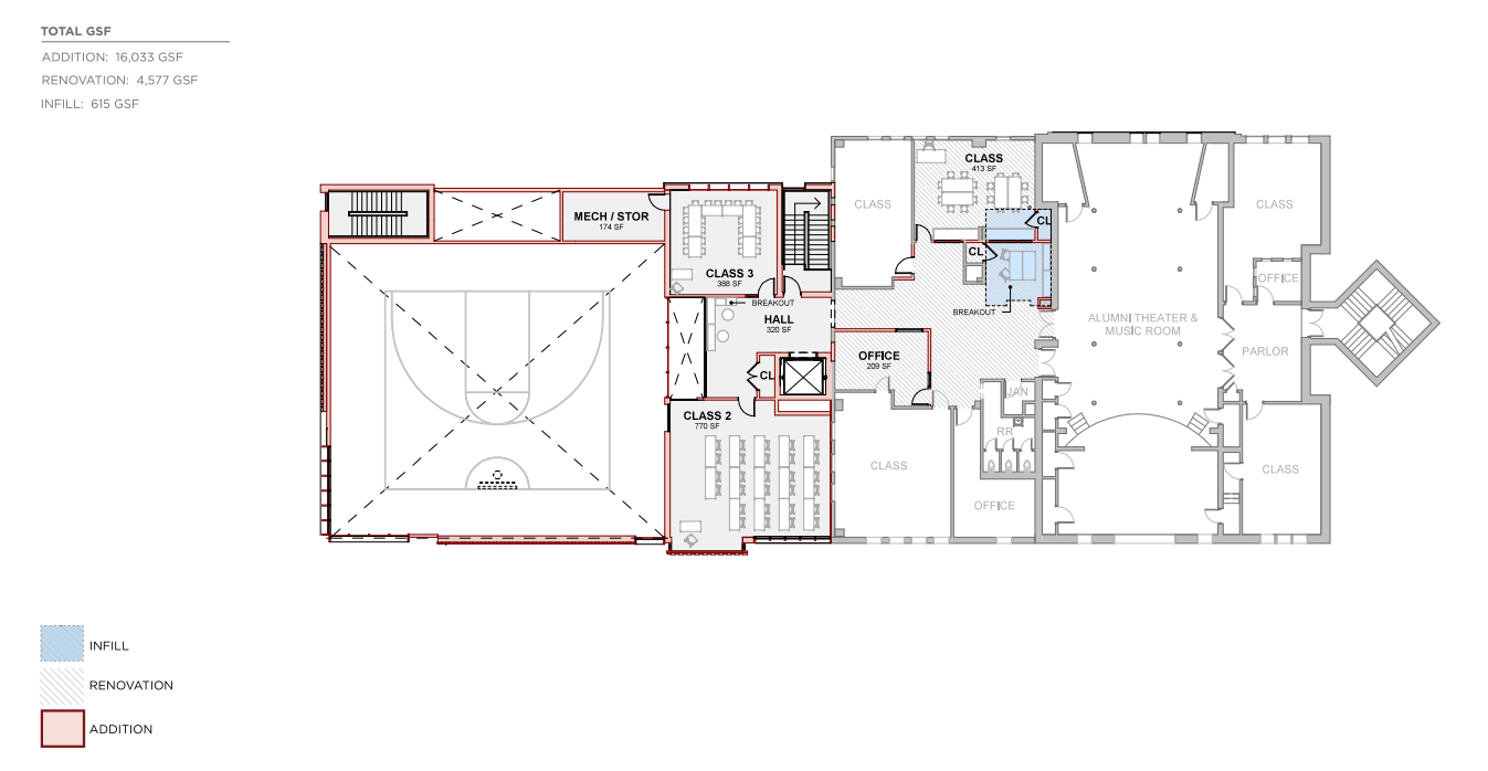
We couldn’t tell you why, but the church decided to opt out of this project, leaving the school on its own to solve a need for more space. The latest effort is a significant departure from the previous proposals, with the school now looking to expand to the west, on a portion of their property that’s been used as outdoor space for many years. The addition will be connected to the existing structure on the west side of the building, with a smaller play area planned on the leftover space at 4th & Lombard.



Just like the previous proposals, the addition won’t require the demolition of any historic buildings. But because the school building is a contributing resource to the Society Hill Historic District the Commission has full jurisdiction over the site. Because the new addition designed by from AOS Architects will be “compatible in massing, size, scale, and architectural features” of the historic property and neighborhood, the Commission’s staff has recommended approval. The protruding brick work does a particularly good job echoing some of the surrounding architectural context, and the more modern materials like the mesh metal screen, glass block, and even the paneling will help differentiate the contemporary addition from the legacy structure.


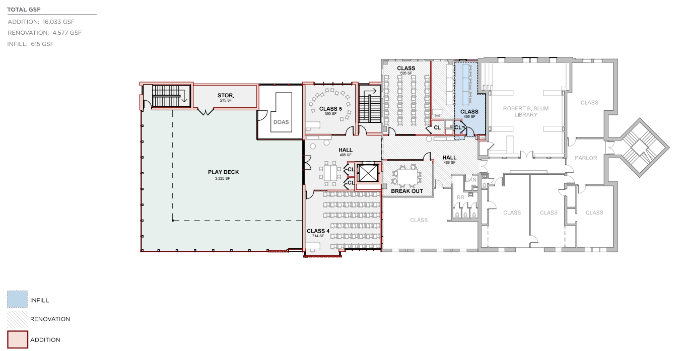
A lobby area will connect the new facility with the existing structure, and some of the old classrooms will be renovated. The first floor will also include a multi-purpose room with a stage, half a basketball court, and room for school assemblies. The school will add classrooms and breakout rooms in the new space, and the addition of new staircases will allow the removal of an existing staircase to make room for more classrooms. The connections between the new and existing building will allow a new elevator to serve the whole building, greatly improving accessibility. On the 3rd floor, plans call for a rooftop play deck, which should mostly make up for the loss of the current outdoor space.



Securing approval from the Historical Commission will only be the first step in getting the final go-ahead. Because of the site’s residential zoning, a special exception will be required from the ZBA for using the new facilities for educational purposes. Though we don’t imagine the ZBA will be an impediment to these plans, the fact that the hearing hasn’t yet been scheduled tells us that it’s unlikely we’ll see construction start before next summer.




While we confess we are not as excited by this proposal as we were about the prospect of a surface lot going away, we’d still be quite happy to see this project move forward. As we are now half a dozen years and four iterations into possible expansions for the school, we will temper our enthusiasm until we see shovels in the ground. Then again, the school has poured considerable time and effort into expansion plans, so we are confident that something will eventually happen here. Here’s to hoping it won’t require any more visits to the Historical Commission after this latest round of changes.


Leave a Reply