Saint Laurentius Church was built at 1600 E. Berks St. in 1882 and served as a house of worship for over 130 years, until it was shuttered by the Archdiocese in 2013. Though there were plans to maintain the building as a site for major religious events, the City soon deemed the church structurally unsound in 2015 and the Archdiocese made moves toward demolition. Fortunately, the Friends of Saint Laurentius group got organized and successfully got the building designated historic, preventing its demolition.


So the Archdiocese pivoted, looking to sell the property to a developer. This resulted in a plan to convert the church to a 23 unit apartment building. Despite a roughly 3:2 margin of opposition from the community, the ZBA granted the requested variance. A group called the Faithful Laurentians then formed, aiming to preserve the church as a sacred space and community center. This group appealed the ZBA ruling to the Court of Common Pleas, but this appeal was dismissed in 2017. Two years later, the appeal was thrown out in Commonwealth Court. As you can see in the above photos, the building continued to deteriorate over those years.
Despite the wins in court, the developer eventually gave up and the Archdiocese found a new buyer for the property in 2020. This new developer determined that the church had deteriorated to the point that a partial demolition was needed, and ultimately the Historical Commission signed off on this plan. Plans emerged for a 49 unit apartment building which would’ve incorporated some the removed historic materials by partially rebuilding the historic facade in the front of the new residential building. Ultimately, this developer demolished the entire church a few years ago and trashed all the historic materials. The property remains vacant to this day, aside from some illegally parked cars.


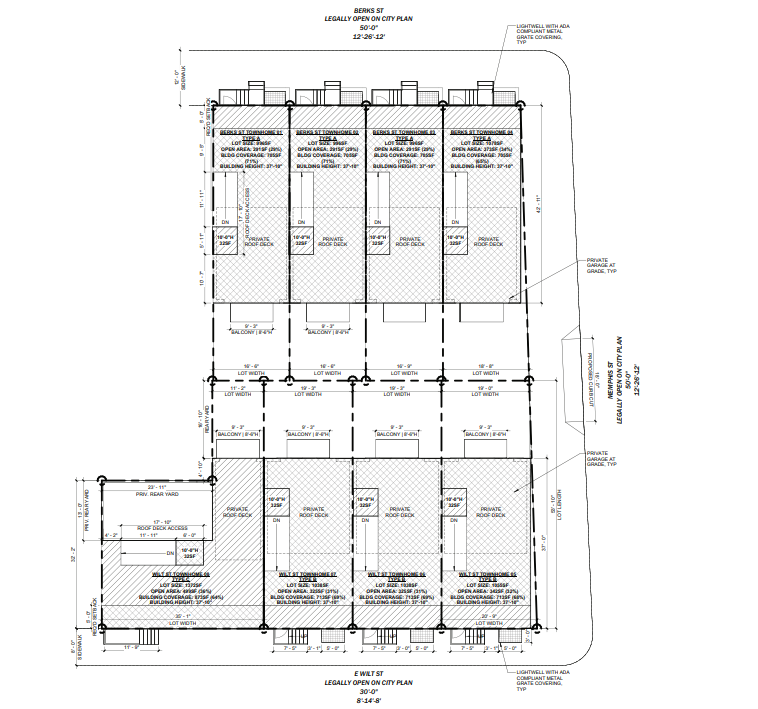
New owners bought the property last month and are pursuing a new plan. Instead of apartments, the team is pursuing an 8-unit townhome project, with four homes fronting Berks Street, four homes fronting Wilt Street, and a drive-aisle accessed from Memphis Street. The new homes will have a contemporary look that echoes the industrial aesthetic of the many factories that once populated this area. Check out these renderings from CANNO Design:




Before this by-right project can move forward, the developers will need to make their case to the Historical Commission. We are a little confused about the Commission’s jurisdiction here, as there is no longer any listed historic resource to preserve and the property is not within a historic district. The Commission’s staff has opined that the total demolition of the church, the failure to preserve historic materials, and the lack of incorporation of those materials or similar replications within the replacement building collectively violate the conditions of the emergency demolition permit.
It’s understandable for the Historical Commission to be furious that the previous owner did not follow the conditions for demolition, but that doesn’t mean the HC should block this plan. We lament the loss of this amazing building, but strongly believe that it would be in the neighborhood’s best interest to see this vacant lot get redeveloped asap. We just hope that the HC can get past the disappointment and get behind the project. What’s particularly galling here is that Saint Laurentius would likely still be standing today as a 23-unit apartment building, had the Faithful Laurentians never banded together. Alas, here we are, looking at the likelihood of a less dense and decidedly less historic project, thinking about what might have been.

Leave a Reply