There are many great restaurants in Philadelphia, and Friday Saturday Sunday is one of the best. It’s such a culinary institution that it merits its own Wikipedia page. While plenty of acclaimed eateries might be tempted to coast on their reputation, a 2023 James Beard Award confirms that this Modern American restaurant deserves a spot on any list of best restaurants in the city, nay, the country. This being the case, owners Chad & Hanna Williams are hoping to grow their business. Earlier this week they outlined a plan to enlarge their restaurant at 261 S. 21st St. by expanding into the building next door.


Walking down the 2000 block of Rittenhouse Square, it would be reasonable to think that all the properties are zoned for residential use. Unexpectedly though, about a quarter of the properties are zoned mixed-use. We’d guess that this is a vestige of the block’s history, when it was home to numerous carriage houses serving homes on Spruce Street, but we couldn’t tell you for sure.
Whatever the reason, 2048 Rittenhouse Sq., the property intended for the restaurant’s expansion, is zoned for commercial use despite the fact that it’s been a home since at least the early 1970s. Despite the commercial zoning, Friday Saturday Sunday will still need a special exemption from the ZBA to proceed with the expansion plan. As is required in this process, the owners met with Center City Residents’ Association this week to explain why their new expanded facility won’t impose any extraordinary burden on the neighborhood.



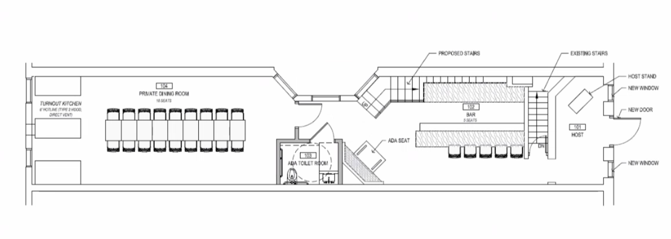
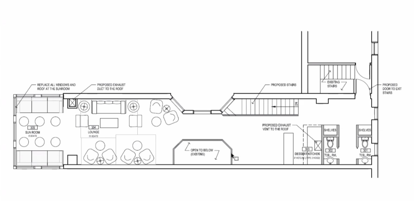
We can see from the plans from Stokes Architecture that the new building will include a bar and private dining room on the first floor, additional dining with an open kitchen on the 2nd floor, and a lounge and a sun room on the 3rd floor. Interestingly, the two buildings have planned internal connections on the upper floors, but access to the first floor of the new building will still come from the street. The owners indicated that the new space will allow for an expansion of their tasting menu operations, freeing up square footage in the current space for a la carte dining.


With many near neighbors vouching for the neighborliness of the current proprietors, we expect that CCRA will endorse the application, which will likely result in approval from the ZBA. While a new restaurant space might have some impact on the fully residential street, a slight uptick in deliveries and trash pick-up should be fairly imperceptible to local residents. It’s rather silly that the zoning code requires a business to go through this months-long process to expand into a property that’s zoned for commercial activity in the heart of Center City, but we’ll try to forget about that the next time we’re devouring their delicious tasting menu. At the very least, we’re probably gonna have to go there for drink after work.


Leave a Reply