A few days ago, we lamented the demolition of the St. John the Evangelist Episcopal Church,  at 3rd & Reed. At that time, we reminded you that twelve homes would be replacing this hundred-and-twenty-year-old but not historic building, and wondered what those new homes would look like.

Demolition last week

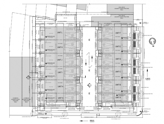
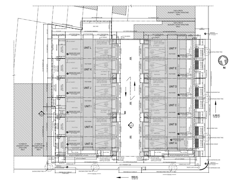
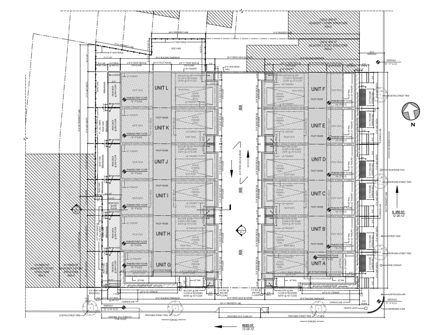
Thanks to the folks at Harman Deutsch, we don’t have to wonder anymore. They were kind enough to send along a site plan, as well as a couple of renderings of the homes that will soon rise at this site.

Site plan

View from Moyamensing

View from the drive aisle. What's up with that shadowy dog walker?

As is the case with many multi-home developments we’ve seen lately, this project will have homes on either side of a drive aisle. This is a positive thing in the sense that the homes fronting 3rd Street will have a street presence rather than garage fronts, though the other six homes in the development will not have any street frontage at all. Also, the Reed Street side of the project won’t exactly be pedestrian friendly, but that’s kind of the price you pay for only having one curb cut for twelve homes.

While the homes certainly don’t capture the majesty of the building they’re replacing, we are pleased with some of the design choices that were made. We confess, we’re pretty much always suckers for a mansard roof. One thing we perhaps would have liked to see is some kind of architectural callback to the church. But alas, no such luck.

How do people feel about the design for this project?