While we appreciate the finer delicacies of the culinary world, a good, old-fashioned diner is always a welcome sight when we’re feeling peckish at whatever hour of the day or night. The Broad Street Diner at the corner of Broad & Ellsworth is one such spot to scratch that itch, with the classic diner look to complete the package. This diner actually helped the Melrose Diner on Snyder Ave. several years ago when a fire ripped through the Melrose, who are owned by the same folks. There were reports back in July from the Inquirer that there were plans to demolish both buildings, but it was only today that we saw an official demolition permit issued for the Broad Street Diner site. As you can see, this building certainly sticks out with its one-story structure and surface parking out front.



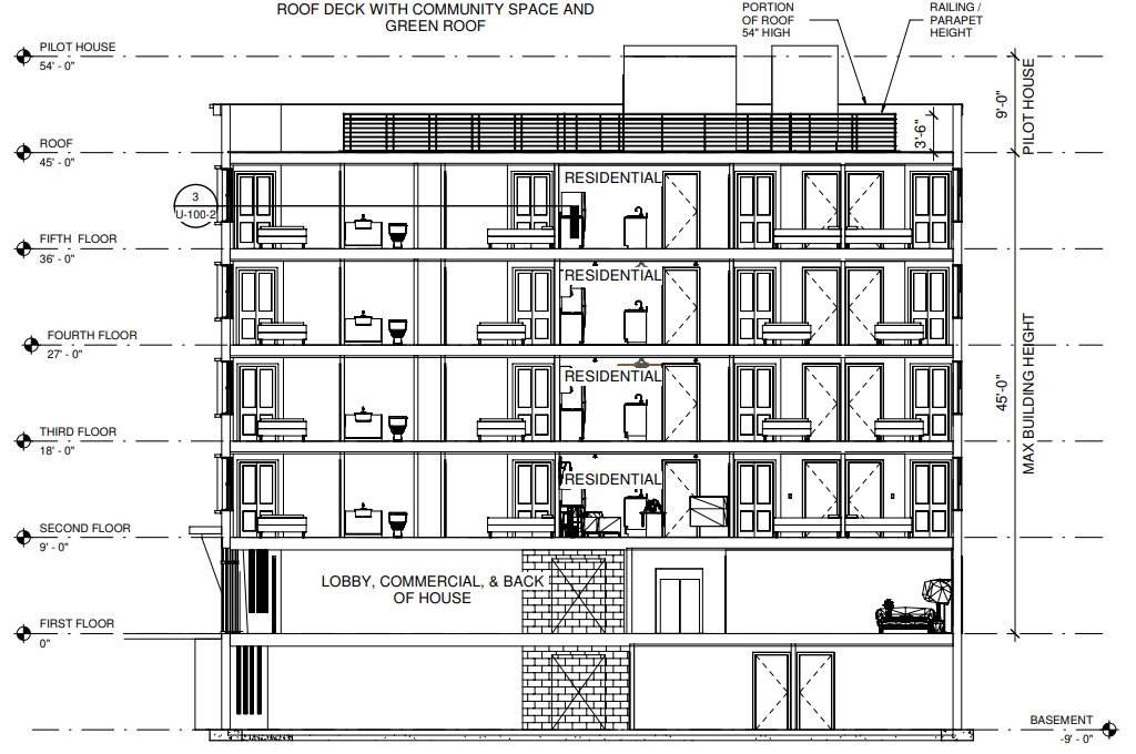
After that bit of digging, we now have a better idea of what’s to come. Look for a five-story, mixed-use building coming to us from Plato Studio. The design calls for 4,300 sqft of ground floor commercial space wrapping from Ellsworth around to Broad Street, with lobby access along Broad. Both the low income and green roof bonuses are being utilized to bump the by-right unit count from 18 up to 31 for this CMX-2 zoned lot. Another fun zoning-related aspect is the fact that there is zero car parking for this project which will sit directly in front of the Ellsworth-Federal stop on the Broad Street Line. While we don’t have many design details, we do know that there will be a small side-yard on the south end of the property.



We usually are all for replacing low-rise structures/surface parking lots with mixed-use residential (especially near transit), the loss of yet another diner with such distinctive features stings just a little. In news that is encouraging on this front, the zoning documents also state that a sit-down restaurant will be taking the commercial space, so we are hopeful that we will see the return of the diner to the ground floor here. Thankfully, folks won’t have to trek far to find another place to grab a cup of coffee.
One such spot is just a few steps north up Broad, where the former Boot & Saddle music venue with its iconic sign is making quite the turn. Ars Nova Workshop has taken over the building, turning it into Solar Myth, a venue for jazz, while also offering a cafe and natural wines. And don’t worry, the sign is still up, with no plans to go anywhere in the near future.

The stretch of Broad St. south of Washington Ave. always has felt like a prime opportunity for an exciting, vibrant reinvention. The somewhat forgotten southern neighbor to the Avenue of the Arts, this grand boulevard features gorgeous, original architecture, while sitting directly on top of the BSL. We hope that more projects and businesses continue to pop up here, as this sometimes placeless place should be one of the best pedestrian areas in the entire city.

Leave a Reply