Way back in the summer of 2011, we first brought the vacant and blighted armory building at 1221 S. Broad St. to your attention. At the time, it was mentioned as an aside to the building that was being constructed next door, which obstructed an underwhelming Frank Sinatra mural. According to Hidden City, the property has been tied up with deed restrictions for the better part of a decade, and even though it was purchased by its current owners for a low price, maintaining the building has been extremely onerous.
With the introduction of a bill by State Senator Larry Farnese, property owner Tolentine Community Center and Development Corporation will now finally be able to sell this property. And according to Passyunk Post, the buyer will likely be Michael Carosella, of C&R Building Supply. You may recall, Carosella has built homes at 20th & Fitzwater, and is currently working on projects at 19th & Fitzwater at the 1400 block of Bainbridge.
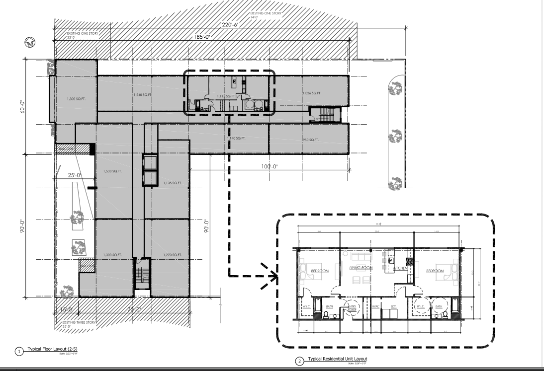
At a meeting last week, Carosella presented a plan to South Broad Street Neighbors Association to tear down the armory, built in 1886, and replace it with a new construction building with fifty apartment units. Presenting with him was architect Vince Mancini from Landmark Achitectural Design. Passyunk Post was kind enough to share a rendering and a floor plan of the proposed development.
The proposed building would be six stories high, with a parking lot in the rear with spots for fifty-three cars. Neighbors who came out were apparently in support of the project, which comes as no surprise. This project is a prime example of a developer and an architect seeking to build something inoffensive, and difficult for near neighbors to oppose.
Notice above that there’s no retail component to the project. Instead, most of the Broad Street side of the building is set back from the street, with a partially landscaped quasi-green space behind a fence. Also, the building is located a block from a subway stop but still has over 1:1 parking. Why, you may ask? Because that’s what neighbors want, of course!
There’s no question that a prime retail tenant could be attracted to a new construction space on South Broad, but neighbors would fight it! No parking is required based on the building’s zoning, but heaven forbid someone’s street parking be threatened by new neighbors. And as for neighbors’ reactions to the demolition of an old building with history? Eh, as long as the new place doesn’t impact my current quality of life.
No question, we’re happy to see movement at this property, which has been dragging down its block for years. And as sad as we are to see the armory go, we’ll take the developer at his word that its beyond saving. And we even like many of the design elements in the proposed building. But especially because this is a rental building, and considering the fact that Boot & Saddle is coming soon up the street, couldn’t a retail component have been included in this project?






Leave a Reply