Philadelphia is an amazing historic city with a host of worthy tourist destinations. Independence Hall and the Liberty Bell are perhaps the most obvious, with our numerous museums offering more culture than you can shake a stick at. Like looking at cool stuff? Check out the Magic Gardens or go on a Mural Arts tour. Hungry for anything? Reading Terminal Market has you covered. And the list goes on.
One of the more unusual tourist destinations in Philadelphia is located on 9th Street, between Federal and Wharton Streets. As you’re surely well aware, this block is home to Philadelphia’s most famous cheesesteak shops, Pat’s and Geno’s. While most locals we know would rather visit Jim’s or Steve’s or Tony Luke’s, Pat’s and Geno’s are obviously doing something right, with a track record stretching back decades in the notoriously challenging restaurant business. And the proof is out there on weekends every time of year, as tourists line up to sample a cheesesteak from one or the other, or sometimes both.

Given the number of people that visit this block, you’d think that there would be a collection of other famous or at least quasi-famous businesses in the immediate area, building off of runoff customers from the steak shops. Yeah, there are certainly some businesses nearby, but aside from Garage, we can’t think of any other businesses that have had sustained success around Pat’s and Geno’s. One thing that has enjoyed some staying power though, is the vacant lot at the northeast corner of 9th & Wharton. As we told you back in 2012 when we first looked at this property, St. John Nepomucene Catholic Church stood here for a very long time, ultimately getting demolished in the 1990s. As the years have rolled along, millions of tourists have visited this area and we have to think that many of them have wondered why this property has continued to sit empty.

For the bulk of those years, the answer is that the property was owned by a member of the family that owns Pat’s and they weren’t especially interested in developing the property or selling it off. More recently, a developer bought the property in 2014, only to have their plans fizzle in the face of community opposition. A little over a year ago, we told you that the property changed hands again, and that we were cautiously optimistic that something would finally happen here. Those feelings are even stronger today, as the folks from High Top Development got a variance last year and have started pulling permits over the last few months. They tore down the home on the eastern end of their property in recent months, in preparation for upcoming construction of their Wharton Flats project. As for what that’ll entail, check this out:


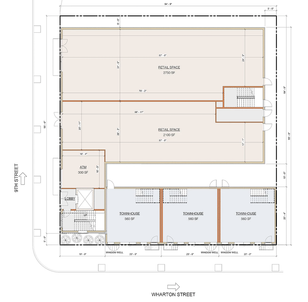
The rendering doesn’t make the plan entirely obvious, so we included a site plan as well. On 9th Street, look for a four-story building with a pair of retail spaces on the first floor and 21 units upstairs. On Wharton Street, the plans call for a trio of square-shaped town homes. While we might have preferred a larger building with more units, we can appreciate how this plan finds some middle ground, providing some density and commercial use while still maintaining the residential character of Wharton Street. As for what kinds of businesses we’ll see in this building, we have no idea. Some kind of food operation would seem like the right approach, but like we said it’s traditionally been tough sledding for anyone selling anything other than cheesesteaks on this block. Perhaps Pat’s and Geno’s will consider leasing the retail spaces in the building and offering a higher end steak shop experience? Maybe with table service and air conditioning? Eh, probably not.

Leave a Reply