A skeleton can serve as a wonderful way to understand an organism, giving an idea of the structure and inner workings of how an animal functions. However, we all know that Jurassic Park only became a phenomenon once skin and muscles were added to the familiar fossils to bring the dinos to life. Something similar happens with buildings, as the skeletal structure rises first, giving an idea of the shape to come while still leaving plenty of room for imagining what lies ahead. And then once the facade starts to go up, the new building becomes something almost as majestic as a tree-top encounter with a brachiosaurus. Excitingly, we are starting to see the project at 416-38 Spring Garden St. get its new skin.


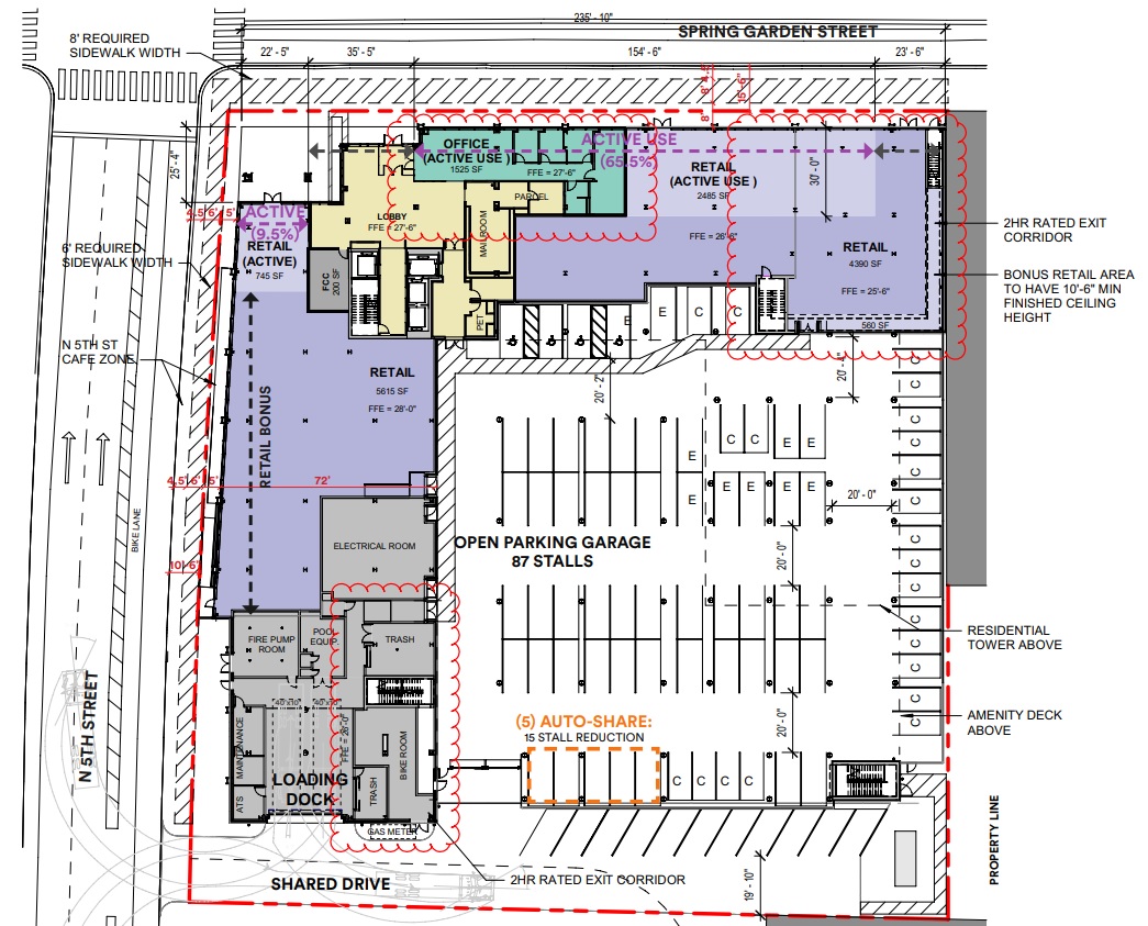
That’s right, things are now moving at a very rapid pace for this apartment project we checked on this past September. 329 units, 87 parking spaces for cars and 111 for bikes (!), and three retail spaces lining both Spring Garden and N. 5th St. will be joining the development boom taking place right at this intersection. Developers Southern Land Company are leading the charge here, adding to their expanding Philadelphia holdings. This design from SCB is modern but with strong hints of the vernacular architecture of the area, utilizing what we can now see as a more traditional reddish brick, which will pair with contemporary black metal to form a handsome building at the SE corner. Taking a loop around the site, there was just enough progress to give an idea of what’s ahead. Let’s stake out the perimeter and get a better look.






We are thrilled to see so much progress since demo started less than a year ago, as this is just one more entry to the exploding southern end of Northern Liberties. Looking to the SW down 5th St., The Block at Sono is right there along with Target. Looking west down Spring Garden, the recently finished Carson apartments and the Yards Brewery are creating a new destination intersection for the area along with the long-operating Silk City.


It’s no secret that this area is being flooded with residential projects, and we honestly love to see it. Spring Garden St. had little going for it not too long ago, with few businesses and even fewer residents creating something of a ghost town for blocks-long stretches of this important east-west running street. While some may not like the shift to the area, we think that having yet another corridor for people, libations, and entertainment is a massive positive for the neighborhood and frankly the whole city. Besides, you don’t want to be a dinosaur when it comes to change.

Leave a Reply