We’ve written a few stories this year about projects permitted at the end of 2021 which eventually needed new permits after the originals expired. For example, we told you about a senior housing project in East Germantown and a 50 unit mixed-use project near the Chelten Avenue Station, both of which dealt with this situation. It appears the same thing is playing out at 2300-10 Germantown Ave., where developers are planning nine units over commercial on a vacant lot.

But this is no ordinary vacant lot! The unusually shaped parcel once housed the Romanesque Revival style New National Bank. Maybe we can’t bring back the historic building which expressed “the decorative exuberance of the Victorian era,” but a new building on this long empty corner will help bring more vitality to a transitioning pocket of Hartranft.

The bank was constructed in 1893 out of a mix of terra cotta, pink granite, and decorative metal elements. The building must have been impressively imposing, despite only rising two stories, which certainly meant a lot more in the days before federal deposit insurance. The building served as a bank branch under various names until 1971, when the building was sold for a $1 to the lle-lfe Black Humanitarian Center, which would go on to open the first African-American history museum in Pennsylvania in the former temple to commerce. A successful nomination for the National Register of Historic Places was secured in 1985 , but with the closure of Ile-Ife Museum a few years later the building fell into disrepair, eventually getting demolished in 1997. The property would remain in tax limbo for another two decades, before finally getting auctioned off at sheriff’s sale in 2017.


The former bank may have been demolished nearly thirty years ago, but that doesn’t mean it’s slipped from public memory. Over the years the site has been covered in Philly Mag and included in a photo book of abandoned Philadelphia. Back in 2019 Temple students collaborated with Asociacion Puertorriquenos en Marcha (APM) producing a report remembering and envisioning the future of this stretch of Germantown Avenue, helping to keep alive the memory of the building which was razed before any of the students were even born.

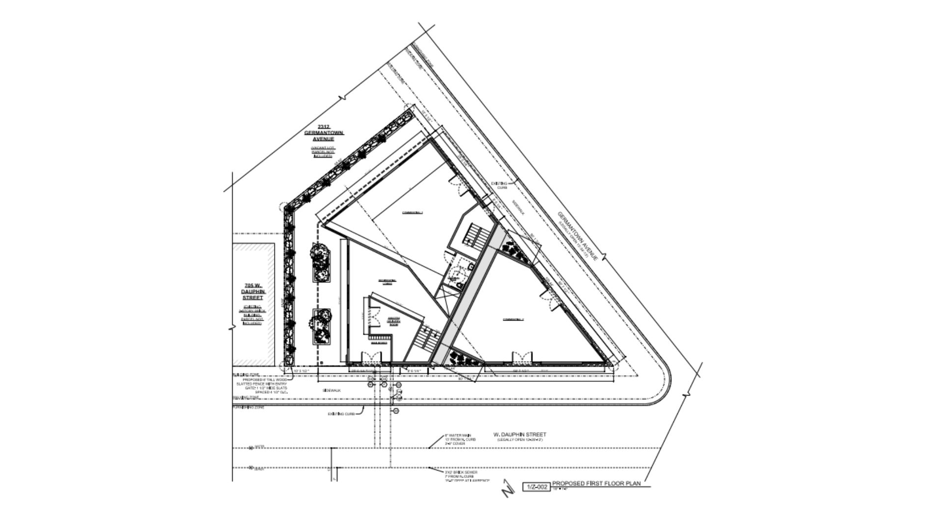
Plans from Studio C Architecture show a building with a right-angled trapezoid footprint, roughly matching the parcel’s quasi-triangular shape. The entrance to the building’s residential lobby be located along Dauphin Street, while two commercial spaces will front Germantown Avenue. It looks like a brick veneer will be used for the street-facing facades, with paneling for accents to break up the massing which sort of matches the new contemporary character of newer buildings nearby. Really though, it’s the curved balconies on the three residential floors that we most appreciate. Aside from the fact that it looks cool, the flatiron style is a nice reference to the old bank.


Along with the mural next door entitled Family Interrupted, residents hanging out on the roof top decks should have some pretty cool views of the skyline in the distance and two nearby Baptist churches. Or maybe when they can check out some of the other new buildings which have gone up over the last few years nearby, like the 72 unit mixed-use development known as The Washington across the street.

Hartranft may not be a neighborhood that comes to mind when you think of rapidly evolving neighborhoods in Philadelphia. But with growth to the east in Norris Square and Temple continuing to expand its footprint to the west, we should expect more of the vacant lots in this corner of Philadelphia to fill in over the coming years. We can’t bring back the historic buildings we’ve lost over the last few decades and there isn’t a developer out there that would try to imitate this intricate historic style. While the new building at 2300 Germantown Ave. won’t hold a candle to its historic forebear, by the standards of today it will be a terrific building which will finally fill in a lot that’s been empty for years.

Leave a Reply