If you caught our story the other day about a church in Fairhill doomed to demolition, you’ll remember that we suggested that public assistance would be necessary to spur sizable projects in this pocket of North Philadelphia. We thought we had been immediately proven wrong when we subsequently discovered a zoning permit for a 34 unit apartment building at 515 W. Cumberland St., half a dozen blocks south of the ill fated former religious building. Upon closer examination, we realized that this project will indeed receive government assistance, as a non-profit is developing the parcel after acquiring it from the Land Bank.

Download (92)
Northwest corner of Reese and Cumberland streets over the summer

The property in question covers close to an acre and has been sitting vacant for decades. In recent years this property has been blighted and trash strewn, commonly used for illegal dumping. The City of Philadelphia condemned the site and took possession in the early 2000s, with the Land Bank securing ownership in 2019. The condition of this property has been so deplorable that the Land Bank received a message from a neighbor in 2021, lamenting the property’s blighting influence and lambasting the office for doing such a poor job maintaining the site.

Screenshot 2025-03-13 At 12.42.17 PM
Aerial view showing the outline of the property

Despite the property’s current state as a disgusting trash heap, it has a much more productive history. In the late 1800s, the Delaware Carpet Mills had a large factory at this location. With hundreds of employees, the site was one of the largest carpeting factories in the United States at a time when Philadelphia was one of the leading textile manufacturing centers of the world, producing more carpet than the rest of the country combined. Unfortunately the once formidable Philadelphia yarn and carpeting industries are long gone, as are most of the industries that gave Philadelphia its nickname as the Workshop of the World.

Screenshot-2025-03-10-10.55.02-AM
Illustration of the factory in 1886
Default (7)
A photo of the factory published in "Philadelphia Pennsylvania, The Book of Its Bourse & Co-operating Bodies"

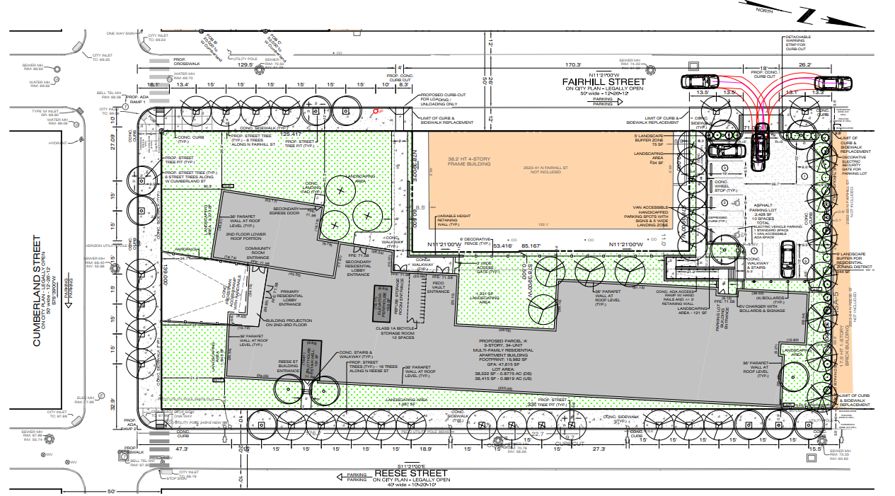
The Land Bank will be turning this property over to the Women’s Community Revitalization Project, a non-profit that has a track record of building affordable housing across Philadelphia. The project calls for a three-story building with 34 units, along with a small surface parking lot on the northern end of the property. While this project will clearly represent a dramatic improvement over the status quo, we have to question why the project isn’t including more density. A 4th floor would be the easiest path to increase the unit count, along with a footprint that takes up a little more of the available site. It’s great that the building will include a bunch of outdoor space, but we’d trade a bit of that space for a few more units.

Screenshot 2025-03-10 5.15.07 PM
The layout of the permitted building, primarily running along Reese Street

To see a more efficient use of limited urban space, you don’t need to go very far. If you look at the map above that shows the footprint for the 34-unit proposal from WCRP, you’ll see what looks like a building right in the middle of the site. That’s 2523-41 N Fairhill Ave., a four-story project with 22 units that’s approaching the finish line, on a site that measures a little over 8,000 sqft. Not only is that project interesting in the sense that it prioritizes density in comparison to the WCRP project, but it’s also notable that it’s probably a market rate project.

Download (93)
The recently completed 2523-41 N Failhill St building

To be clear, there are many examples of market rate development in this pocket, but those projects have typically been one-off homes, duplexes, or triplexes. Assuming this is a market rate project, it will be the largest one in the immediate area, and by a decent magnitude. Assuming the building can find market rate tenants, it will be a signal to developers that there are opportunities in this part of town for medium and larger sized residential projects. With no shortage of vacant land in Fairhill, this could mean we’ll be spending a bit more time around these parts, moving forward.