Coming back from the Poconos this weekend, we hit some traffic as we were heading back to town, so we cut through Manayunk to alleviate some of our I-76 related suffering. Making our way to Ridge Avenue, we found ourselves on Tower Street and at 4120 Tower St., we spied a row of eight new homes.

New homes on Tower Street

Having never been to this block before, we did a quick peek at the Google Street View from a few years ago and we realized that these homes have replaced a squat building that looks like it was originally used for industrial purposes. Most recently, the building housed Intercommunity Action, an organization that provides services for the elderly and the disabled, among other wonderful efforts. They moved to Ridge Avenue after selling the property, fyi.

In the past

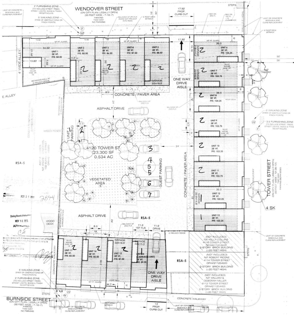
Doing a little more digging, we discovered that this row of homes is actually part of a larger project called The Towers which will total seventeen units when all is said and done. Eight of the homes have frontage on Tower Street, and there are also five homes on Wendover Street and four homes on Burnside Street. We confess, we aren't sure whether those homes are under construction just yet since we didn't know about that aspect of the project when we snapped our photos. But a site plan from their zoning application shows what we can eventually expect. It also shows a drive-aisle that will lead to a guest parking lot and a sizable vegetated area, ostensibly exclusive to the residents of the development (and their guests!).

Project site plan

View on Tower Street

Three of the homes are currently listed for sale, with prices ranging from $425K for a home with one-car parking to $500K for a home with two-car parking. And Mad River Manayunk is only like two blocks away. So whoever ends up buying there homes will also have that going for them.