We’ve covered a few big projects along Manayunk’s Main Street recently, but last week at a meeting of the Manayunk Neighborhood Council we learned of another upcoming change for this commercial corridor. Vira Hookah Lounge at 4219 Main St. is permanently shutting down to make room for a new bar and restaurant.

Prior to serving as a hookah lounge, this ground floor commercial space was briefly a shipping center, and before that the White Stone restaurant. Old zoning records also indicate the shop was use for a hair salon, massage therapy, a furniture store, an office, and maybe even a fireworks store. Given Main Street’s long history as a commercial corridor, this long list of former uses puts a very fine point on the challenging nature of small business ownership.

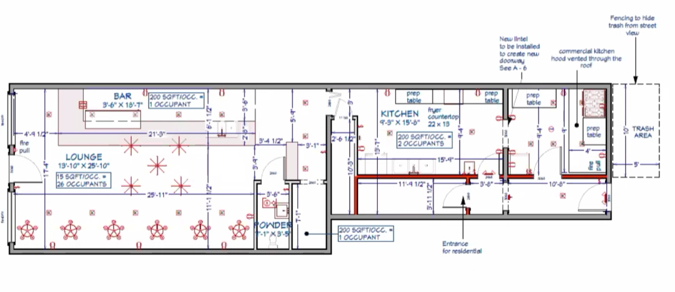
With new ownership and a liquor license, look for a pivot to an American-style concept that does not include hookahs. The new use is permitted by right, but the property sits within the Main Street/Manayunk and Venice Island Overlay, triggering a parking requirement. According to the plans submitted by the operators, this business will have a capacity for 30 occupants, which will require 8 parking spots.

Obviously, this property can’t accommodate 1 parking spot, let alone 8 spots. Fortunately, the overlay allows for off-site parking within 1,000 feet. Historically, other businesses have entered into agreements with the Manayunk Development Corporation to handle off-set parking at one of the lots they manage. These negotiations are wrapped up in broader four-party agreements between the business owner, MDC, the neighborhood association, and the parking lot operator, in which the owner agrees to rent parking spots, limit business hours, and manage noise levels.
It’s a little wild that this overlay exists, imposing parking minimums on new businesses in Manayunk. Especially when considering the walkability and transit access on Main Street, one could credibly argue that these draconian requirements actively discourage new businesses from opening here. We would contend that the overlay’s primary purpose is to prevent projects from being developed by right, effectively allowing the neighborhood to interject and cut deals, even for businesses that conform to both the zoning on the corridor and the general retail mix on Main Street.

In this case, the new owners were able to come to an agreement and get support from the RCO for the new business. As a result, we’re fairly confident the ZBA will approve the application. As we await this decision, we’ll keep an eye on the surface parking lot two doors down and hope it gets redeveloped soon into a mixed-use project. Assuming the overlay and any parking requirements aren’t too much of a barrier, it would certainly be a great candidate for some height and density in this terrific location. Surely, the new bar nearby would rather have customers for neighbors than a surface parking lot.


Leave a Reply