If you asked a random Philly dweller to talk about Ridge Avenue, you could get about a thousand different answers, as this jaunty street stretches across a huge swath of the city. From Chinatown to Roxborough, Ridge Ave. offers the full gamut of the urban experience, sometimes for better (pedestrian-friendly) and sometimes for worse (auto-dependent). The area near 6174 Ridge Ave. in Roxborough is one of our favorite stretches, where low-rise historic structures line the street, offering a wonderful pedestrian experience. The tree-lined streets and small-scaled storefronts make for a pleasant stroll, though this block is about to undergo a major transformation if plans posted by the Central Roxborough Civic Association (CRCA) come to fruition. With a trip to Civic Design Review next month prompting this meeting, we know that a shake-up is coming just north of the Roxborough Pocket Park.



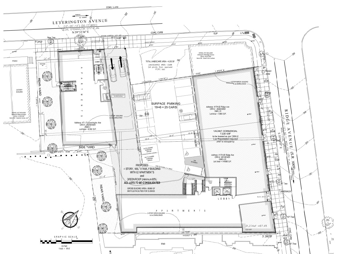
The buildings at this address are currently bustling, but they will soon get torn down. Sesame Ridge Apartments, an 84-unit project with parking for 25 cars and 32 bicycles designed Ingram/Sageser Architects, is slated to cover most of this block, save for the building on north corner on the property (currently home to Ban Bamboo, which will continue to sling Thai and Laotian food moving forward). The new project will also include 7K sqft of ground floor commercial space, though the size has been scaled back from previous iterations due to a zoning overlay that limits the total commercial space permitted. The design consists of stone, limestone block, brick and paneling and reminds us a great deal of another Ingram/Sageser project several blocks from here on Ridge, which we covered back in May.




This project leaves us a bit lukewarm. We love the inclusion of commercial space and the green roof, and we applaud the density that these 82 new units will provide for this CMX-2.5 zoned lot. But something about losing so much character to this commercial stretch bums us out. The design is meant to reflect the older buildings in the immediate area, but will clearly stick out amongst the current streetscape as being of a different time.
We appreciate that the architects attempted to break up the massing of the project with the addition of heightened dormer windows, but this building still won’t feel like it’s of a piece with one of the area’s oldest streets. The cozy feel of this stretch will likely be lost with this current plan, so it will be intriguing to see how the CDR committee responds to the designs. Remember though, CDR feedback is non-binding. The buildings on the Leverington Ave. side of the property have already received demo permits, so it appears things are in for a change sooner than later. And with this project being allowed as a matter of right, change is very much on the way once the CDR process wraps up.

Leave a Reply