We’ve waxed poetic about Ridge Ave. numerous times, so we won’t belabor the point: this commercial artery is both historic and rapidly changing. Ridge in Roxborough has seen plenty of development in recent years, which brings us to 5959 Ridge Ave. to see an example of the corridor’s ongoing evolution.

Formerly a Goodyear tire shop, the property was purchased by TierView Property Management and was demolished since our last trip to the area about a year back. Zoning documents shed light on this 30-unit project designed by Bright Common, with parking for nine cars and ground-level retail along Ridge. Called The BEV, short for Big Efficient Volume, this is yet another Beverly-named multifamily project under construction right now.

5959Ridge-01
The Goodyear Tire at the corner of Ridge & Monastery in the not-so-distant past
5959Ridge-02
A rendering of the four-story building at the same corner
5959Ridge-04
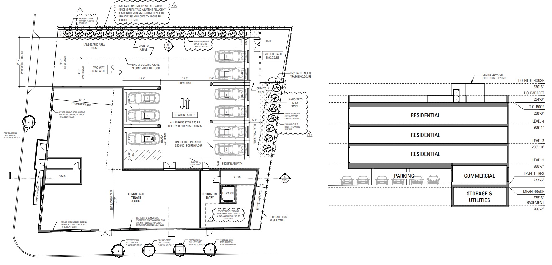
Site plan and elevation drawings show off the layout
5959Ridge-05
The Acme is literally in your backyard

Most notably, the pink hues of the original plans have been substituted for a safer gray brick, perhaps due to neighborhood pushback, perhaps due to cost savings, or perhaps just because. Otherwise, the built product looks nearly identical to the renderings, with the facade getting the last of its bricks when we went to scope out progress. The inclusion of the ground-level retail space will ensure this corner remains activated and we are glad the parking access is located along the smaller Monastery Ave. instead of along the more pedestrian-heavy Ridge.

5959Ridge-06
View from Monastery shows the "below" grade parking access
5959Ridge-07
A closer look at the brick work
5959Ridge-08
6012 Ridge Ave. across the street, now available for $1.95m

As far as that name, BEV was efficiently designed due to height restrictions (booooo) and parking mandates (boooooo) due to the Ridge Ave. zoning overlay. Otherwise, we could have seen ten additional feet in height (from 45′ to 55′) and the total removal of parking (from nine spots to none). Down-zoning once again takes away height and adds parking to a major arterial corridor. Despite these design constraints, we would take this project over a tire shop ten times out of ten, especially along a growing mixed-use stretch.

Speaking of stretch, you only have to look to the property catty-corner to this if you’re looking for some space to stretch out. We couldn’t help but be drawn to the mature trees, huge lawn, and sturdy architecture of 6012 Ridge Ave., currently home to Intercommunity Action. This organization – which provides a wide range of services to the local community – appears to be moving elsewhere close by, as the sale sign on that huge front lawn can attest.

Not only does this look great from the outside, but the interiors look pretty darn nice according to a listing on the property, which comes in a shade under $2 million. As the zoning on this 60K+ sqft parcel is Residential Single Family Detached (RSD-1), you’ll have plenty of room – by right, no less – if you do have your eye on a huge property right across from the Acme.