A reader asked us about some demolition activity they noticed on the 1800 block of South St., and we know all about this one, as it turns out. Developer Scott Haffey of Haffey Homes is constructing two four-story triplexes at 1820-1822 South St., and will attempt to sell the six units as condos. These new structures are replacing a dilapidated building and a vacant lot, respectively.
Both SOSNA and South Street West Business Association did not support either application, resisting the addition of a fourth story and more importantly desiring that commercially zoned properties on South St. maintain their commercial use. Though SOSNA eventually wrote a letter of non-opposition for 1822 South St., the conflict between the community’s desire to maintain a commercial corridor and the developer’s need to make a profit is very much on display here.
We can definitely appreciate both sides of this issue.
On the one hand, the commercial vitality of South Street West is critical to the vibrancy and energy of the surrounding neighborhoods. The 1500, 1600, and 2100 blocks are fine examples of diverse commercial blocks, with different products and services offered at a number of different businesses. Permanently changing over the use to residential for these properties will make it more difficult for the 1800 block to ever reach that level.
On the other hand, Philadelphia is a block by block kind of town and the 1800 block of South St. isn’t exactly desirable for commercial tenants that don’t sell breakfast or lunch for the crowds at Penn Medicine at Rittenhouse on the north side of the street and it’s possible it never will be. As we’ve reported, there are numerous vacant commercial spaces on the more viable 1500 and 1600 blocks, so why would a tenant opt for the same 800-1000 sqft space on a much less desirable block?
We certainly don’t have all the answers. What say you, good reader?
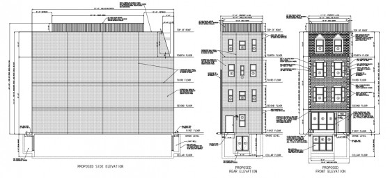
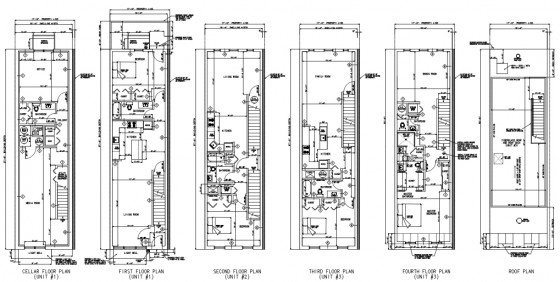
See below for elevations and floor plans for 1822 South St. 1820 will be identical, except the staircase will be flipped.

Floorplans. Condo 1: Cellar and first floor; Condo 2: 2nd floor; Condo 3: 3rd & 4th floors, roofdeck
Disclosure: OCF Realty, the parent company for Naked Philly, will be handling the listings for these properties. Scott Haffey is a real estate agent with OCF Realty.





Leave a Reply