In 2010, Laurissa Kuehn and Carlos Cardenas purchased 2231 Montrose St., a two-story home on an adorable Graduate Hospital block. A few years later, the couple find themselves outgrowing this two-bedroom, one-bathroom home and facing a choice between expanding the home they’ve come to love or moving out, perhaps out of the city entirely. Earlier this week, representatives from Johnson Stromberg Architecture presented a plan to the SOSNA Zoning Committee to add a third story addition to the home, which would keep Laurissa and Carlos in the neighborhood for years to come.
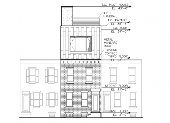
While this project may seem like an innocuous effort to provide a little more living space for a family, the new zoning code that was passed last summer creates a somewhat complex issue out of it. As we’ve mentioned a couple of times before, the code requires an eight-foot setback for third story additions to homes on primarily two-story blocks. As this is a two-story block, the code commands a setback. But when the home only goes back 38′ (already a few feet further back than is allowed by code), losing eight feet on the front of the addition really reduces the square footage that you’re gaining. To mitigate the impact of the non-set-back addition, the architects proposed a mansard roof, angled away from the front of the home.
To us, this seems like a noble solution to the canyoning effect presented by three-story homes on two story blocks. And because the cornice line is preserved, it’s a far more aesthetically pleasing effect than something that can be done by right. The community seemed to be generally in support of the project, but the SOSNA Zoning Committee seemed to be generally opposed. We’ll see what the ZBA has to say, but we’re with the community on this one.





Leave a Reply