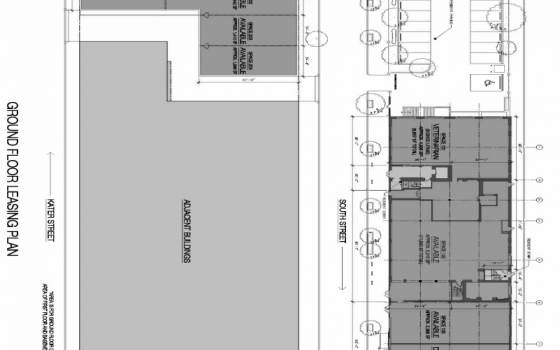
The empty building on the northwest corner of 21st and South was suppose to be home to a national pharmacy chain, but when the economy fell apart, so did the plans with that tenant. US Realty, who is representing the project, tells us that they approached the landlord with the concept of making it a more local-retailer-packed project with tenants similar to those you’d find at the Piazza in Northern Liberties. David Grasso of Grasso Holdings is developing the corner spot at 2101-43 South Street, which at this time looks like a city high school gymnasium, with one door and various barred windows. However, what US Realty was able to come up with is a pretty impressive all-Philly-based retail haven: Honey’s Sit N’ Eat on the corner with outdoor seating, Doggie Style, City Fitness (which will take a large chunk of the ground floor and entire basement), and a boutique veterinarian controlled by the principles of Doggie Style. US Realty is continuing the renovations to construct loft-style apartment rentals above this lineup of ground-floor shops.
The corner of 21st and South will certainly become a hub of action in the area, with neighboring Ten Stone and La Va Cafe. Down the block at 22nd and South, US Realty decided to put the parking lot on the southeast corner to better use. Construction will begin on the 14000-square-foot lot to rent out to more local Philly retailers and, according to US Realty, this corner will feel like its part of the same overall project to tie the area together. What’s coming to the 22nd and South Street space is really special, as US Realty could only let us know that, besides a local deli, the other tenant is “a local restauranteur” that they are very excited about. These two new corners, along with 23rd and South and Stephen Rodriguez’s project means only one thing: we need to start buying property in Graduate Hospital.



Leave a Reply