In the Graduate Hospital neighborhood, the number of vacant lots that remain undeveloped can probably be counted on your fingers and toes. That’s one reason we’ve seen several churches demolished in this neighborhood in recent years. And it’s why a growing number of developers, hungry for any projects in this hot neighborhood, are settling for one-off developments, demoing mid-block two-story homes and replacing them with three-story new construction properties that sell for $500-$600K.
With that in mind, it’s kind of a surprise to hear about new construction in this neighborhood on land that’s been vacant for quite some time. But that’s just what’s happening now at 23rd & Carpenter, which has been a surface parking lot for many years.
A couple of weeks ago, a metal fence went up around this lot, which stretches from Carpenter to Kimball Street. And a couple of days ago, work began on the site with a hole appearing on the Carpenter Street side.
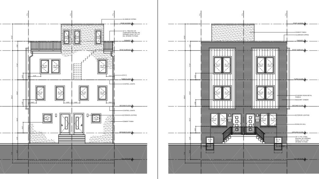
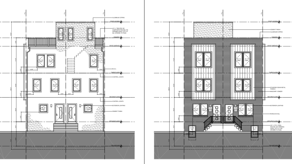
Architect Paul Drzal did the architecture for these four homes, which will rise three stories and will ostensibly be offered for sale. The elevations drawings below are for the two homes on Carpenter, though the Kimball homes will apparently be very similar. The homes are being built by right, and while they’ll feature roof decks you’ll notice no parking will be provided. Kind of a shame, considering the opportunities that could have been afforded for rear-access parking by developing four homes at once on a corner.
Perhaps of greater concern than the parking provided (or not provided) by these new homes is the surface parking lot being lost in a neighborhood where street parking is challenging these days to say the least. One can only wonder when an enterprising developer will find a way to build a parking garage on Washington Avenue to relieve some of the pressure on parking in the neighborhood. We’d wager that at the right price, 200 spots would probably be rented overnight.
Would people be into this idea, or should folks just give up their cars for bikes already?






Leave a Reply