Living in a building above a Target would be the height of modern day convenience, right. Run out of paper towels? There’s no need to taste fresh air to go buy some, you can just hop in the elevator and quickly fill your paper towel needs. Alas, that dream is dead, at least for one property in South Philadelphia, where plans for a mixed-use building with a Target have regrettably been swapped for a Chick-fil-a.

Sqx-map-768x395
The Location of the South Quarter Crossing redevelopment

Way back 2017, we told you about a plan to redevelop Quartermaster Plaza, the enormous suburban-style shopping plaza centered around 23rd & Oregon. This plan, dubbed, South Quarter Crossing, intended to keep the southern section of the shopping center largely intact but called for dramatic changes to the northern portion. When the proposal went in front of the Civic Design Review committee back in 2019, we were able to get even more details, seeing that several buildings were going to be demolished and replaced by mixed-use buildings, a parking garage, and a couple one-story retail buildings.

Oregon-demo
Demolition plan
New-site-plan-768x420-1
Proposal from 2019

Over the past six years, this project has not really gotten off the ground. From what we can tell, the only forward movement has been the demolition of Buildings 1 and 2 from the image above. Building 3 is still there and there has been no new construction. It finally appears that we will see some construction here, but this construction will be a significant departure from the exciting plan that was shared half a dozen years ago.

Download - 2025-06-17T155004.347
The corner in 2015, before the building was demolished
Download - 2025-06-17T154456.086
The cleared parcel at the corner of 23rd and Oregon, with the Center City skyline in the background
Building-f-768x424-1
Rendering of Building F, which was planned for the northeast corner of 23rd & Oregon

Sadly, Building F, which would have included a Target and a bunch of apartments in a five-story building, has been canceled. The development team appeared at the ZBA recently, seeking a variance to build a Chick-fil-A location t at the northeast corner of 23rd & Oregon. Interestingly, the plans call for a location that’s exclusively a drive-thru, with no inside seating and a few outside tables. This ultra-auto-oriented model is seemingly designed to maximize the number of cars and third-party orders that can be served.

Screenshot 2025-06-17 4.23.31 PM
A rendering of the restaurant
Screenshot 2025-06-17 4.37.30 PM
The un-curbed drive-thru lanes
Screenshot 2025-06-18 9.00.08 AM
While there's no indoor seating available a patio is available for cutomers

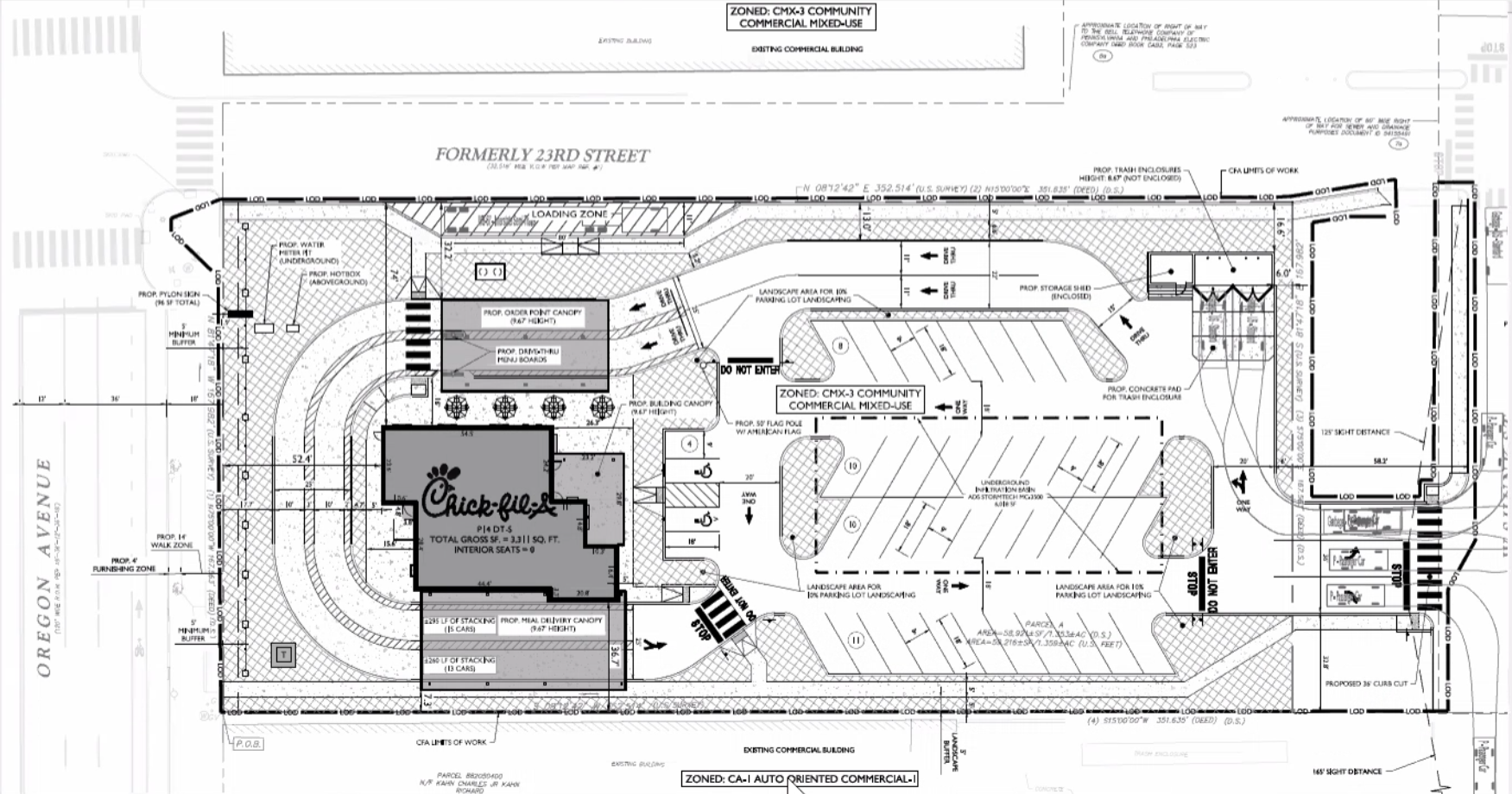
We can see from the plans from Colliers, the building will measure a little over 3,000 sqft, taking up just a fraction of this 60K sqft property. The rest of the site will be taken up by a parking lot for 31 cars and copious drive-thru lanes. While the original plan included a curb-cut off Oregon Avenue, the design was updated to have cars only enter and exit from Shunk Street after feedback from the Streets Department.

Screenshot 2025-06-17 4.59.18 PM
The revised layout

The ZBA granted the requested variances, and it appears that this project is now a go. In the abstract, this is a perfectly reasonable proposal at this location. There are numerous fast food spots nearby, including a Burger King, a McDonald’s, a Wendy’s, and others. So one more fast food spot doesn’t come close to changing the experience in this pocket of the city.

And yet we find ourselves disappointed by this pivot as we try to reconcile our expectations from a few years ago with what’s actually happening here. We get it better than most – the multi-family environment is Philadelphia is profoundly treacherous these days, with a combination of high interest rates, high construction costs, and slow absorption of new inventory. So it makes all the sense in the world that a proposed mixed-use building outside the Center City core is not moving forward. But thanks to our dashed expectations, this downgrade feels extra profound. On the plus side, at least the sandwiches at Chick-fil-a are mighty tasty.