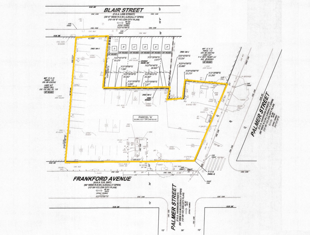
There are countless quaint spots along Frankford Ave. in Fishtown, with Palmer Park being one of our favorites. This shaded park provides a wonderful touch of nature and greenery for the main commercial corridor in this dense rowhouse neighborhood. However, the parking lot across the street from Palmer Park at 1716-32 Frankford Ave. is just the opposite – an underutilized empty lot that doesn’t even serve as parking any longer. But thankfully this eyesore will be making a hard pivot, and next to an exciting addition to the Fishtown food scene as well. We actually visited this lot back in 2018, when we mentioned it was a prime development spot next to a for-sale warehouse (more on that later).



What’s on the way is slightly more exciting than this empty lot. Developers City Living Philly have big plans, with a recent zoning permit indicating that the two parcels that made up the surface lot were consolidated. A 50-unit building will rise here, with tons of commercial space to go with parking for seven cars and 20 bicycles. No renderings are available as of yet, but the site plan gives some idea of the potential shape of the building on this atypical lot shape. While we’ll be sad to see the fruits-meets-fish mural covered up, this is clearly a better use of the lot than at present.

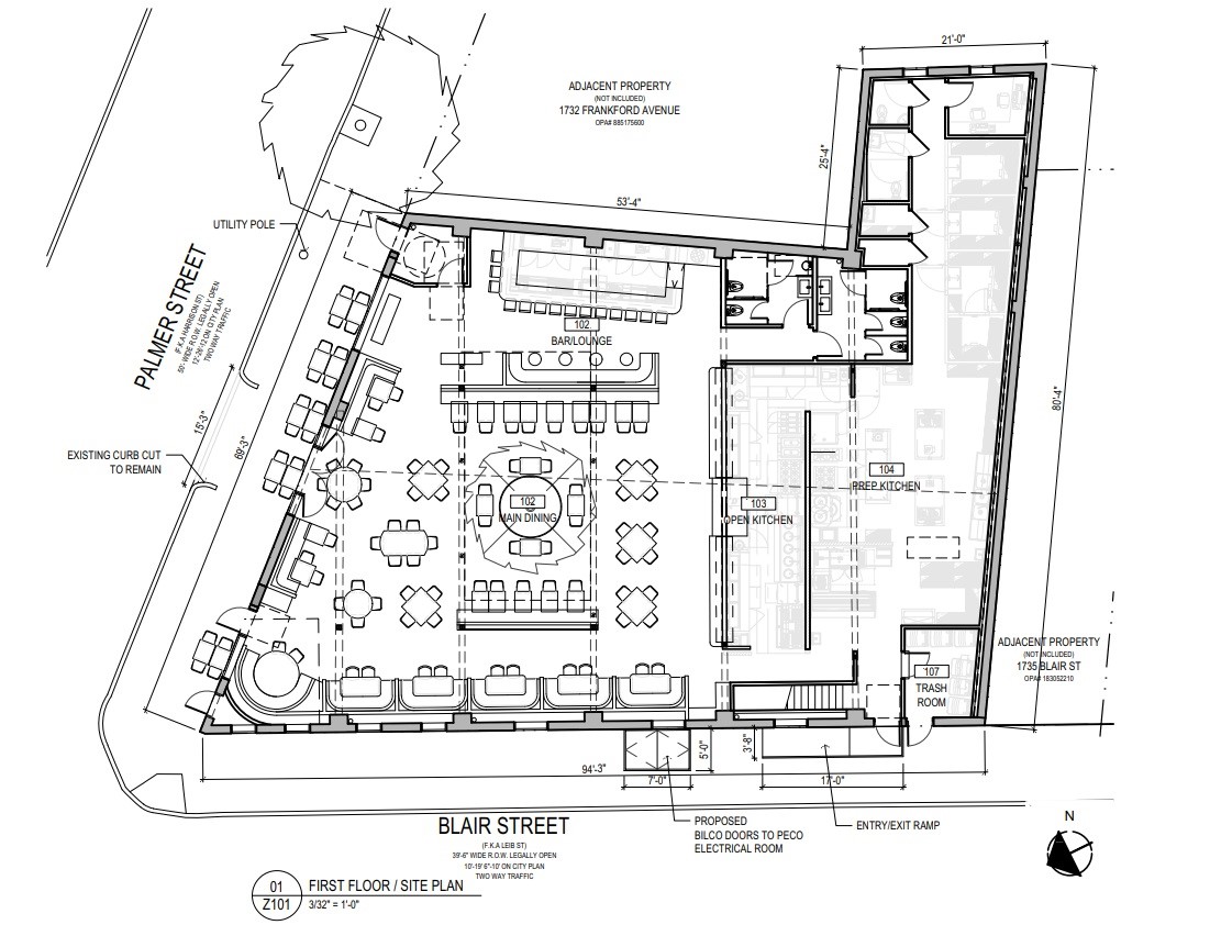
While scoping out the site, we couldn’t help but notice the work that was going on immediately next door to the site at 4 W. Palmer St., where a former industrial building was getting a paint job. This property is also owned by the City Living crew and will be the new home to the wildly successful Kalaya Thai Kitchen, which recently closed its doors at its original Bella Vista location in anticipation of their upcoming Fishtown opening later this month. Stokes Architecture is handling the design, and you’ve likely seen their work if you’ve been in Suraya, La Peg, Talula’s Garden, among many, many other eateries across the city. The highlight of this design is a planned retractable skylight, which will create a wonderful atmosphere for this new home for Chef Nok Suntaranon’s delicious creations.



Quite the busy little block, isn’t it? This sits just a stone’s throw from LMNO and the El, along with another planned project we covered a month back. It’s almost unfair the abundance of both development and quality restaurants in Fishtown, not that we’re complaining. And seeing parking get traded out for dozens of apartments along Frankford Ave. is something that also fills our grumbling belly.

Leave a Reply