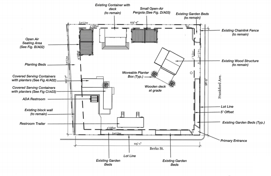
When we learned about plans for a PHS Pop Up Garden at the NKCDC garden center at 1825 Frankford Ave., the idea seemed like an altogether intuitive concept. Philly Compost has used part of this 10K sqft lot since 2011, but from what we understand the rest of the property is generally closed to the public. If you consider the size of the property and its location on bustling Frankford Avenue, you’d probably agree that it could be utilized more effectively. While Frankford Avenue still has its share of alternate vacant lots, the NKCDC partnership angle seemed like it would help in smoothing the way toward cooperation with the community. Uh, no dice.


As we told you before, PHS and NKCDC were scheduled to present the pop up at a Fishtown Neighbors zoning meeting this week. We were concerned about what would happen at this meeting, as numerous commenters on a Fishtown Facebook group indicated that they were opposed to the project. And we can understand, to an extent, why people might be concerned about having a beer garden close to their home. But having seen successful examples of PHS pop ups in other neighborhoods over the last few years, we supported the concept, though we weren’t going to be able to cast a vote as we don’t live in the neighborhood.
PHS saw the writing on the wall though, and according to Plan Philly, they have pulled their plans for a pop up in 2017. In the email communicating this message, a representative from PHS recognized the need to muster greater support in the community and indicated the possibility of giving a Frankford Avenue pop up another try next year. With the pop up now cancelled, it obviously won’t be presented at the upcoming community meeting. This is unfortunate, as we would have liked to see how a vote would have gone. But even if the vote resulted in a letter of support, we don’t know that the project would have found any traction at the ZBA, especially as we expect opponents would have shown up en masse.
On the one hand, we hear where the neighbors are coming from. A beer garden will be noisy, will result in more drunk people walking around the area, and probably result in more car traffic as well (thanks, Uber). On the other hand, this garden would have raised money for PHS, NKCDC, and the neighborhood, and we sense that an opportunity has been lost. Also, as we said before, if Frankford Avenue isn’t appropriate for this kind of thing, where would it be appropriate? Frankford Avenue is a commercial corridor and anyone living near a commercial corridor has to live with a certain amount of noise and traffic. It seems odd that PHS, an organization which has shown an ability to run successful beer gardens on commercial corridors, needs to go above and beyond on this corridor.
So it goes, Fishtown. We’ll see how things play out, but perhaps your loss will be another neighborhood’s gain in 2017 and beyond.

Leave a Reply