There’s a giant lot, fenced in by cinder blocks at the corner of E Hagert & Gaul Sts. in Fishtown/Olde Richmond. The lot, which takes up nearly an acre, surely contained something at some point, but we have no idea what.

A look at the lot at dusk

Peeking inside the fence. Nothin' doing.

It's a big lot, no joke.

About a month ago, Hagert Square Inc purchased this lot for $800K, and has plans to construct thirty (!) homes, each with two-car parking (!!). This project had the potential to be transformative for the area, which has seen its share of smaller projects in recent years but not so many large-scale new construction projects. Ooh, and we’ve got some plans and renderings from the good people at Moto Design Shop.

Site plan for the project shows lots of houses and lots of parking

From the angle of the photo above. Houses look pretty unique

Another view of the homes planned for this site

Zoomed in

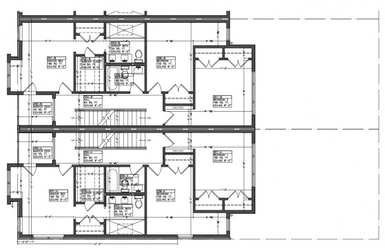
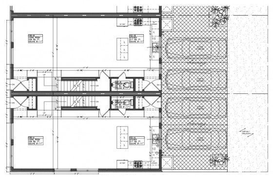
Though the zoning application indicated three story homes, these extra-wide houses appear to only be two stories, which fits in better with the scale of most of the other homes in the neighborhood. The homes, when complete, will have 3 bedrooms, 2.5 baths, basements, and roof decks. They should be in the range of 1600-1800 sqft, not including the basement space. Check out the floorplans:

Two homes are shown. Wide open first floors.

Again, two homes. Second floors appear to hang over the parking spaces, ever so slightly

Hopefully, the developer will have plenty of success selling these units, bringing new neighbors to the area and filling more seats at nearby Memphis Taproom. And if everything works out with this project, maybe they’ll be inclined to develop the huge building across the street that looks like it’s made out of South Philly fiberglass awnings. It’s on the market and ready to go…

Just sayin'