Even as residential permitting numbers are hitting lows we haven’t seen since the Great Recession, we’ve seen new attention for overlooked parcels near I-95 in the River Wards. This makes particular sense in Fishtown, where the most attractive development sites have generally been redeveloped by now. Some of these projects near I-95 are on the larger end of the spectrum, like the 40 unit apartment building recently constructed on the site of a former factory on Berks Street. Some, like a proposal on the 1000 block of Shackamaxon Street, are on the smaller side.


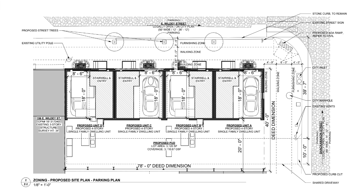
1034 Shackamaxon St., on the far right side of the images above, is a roughly 3,000 sqft corner property that’s home to a two-story home and a small garage. Developers are looking to demolish everything on the site and build four homes along Wildey Street. Though the rooftop solar panels undoubtedly add a contemporary touch, the prominent brick and the large windows reference some of the more industrial buildings nearby, like the former elevator factory across the street, converted into apartments a few years ago.




Before this project can move forward, it will need approval from the Zoning Board of Adjustments. As this property is zoned for single family use, the project triggers a host of refusals for density, height, lot coverage, and possibly parking. Speaking of parking, the homes, assuming they’re allowed to move forward, will each have garage parking in the rear, accessed by a drive-aisle off Shackamaxon. This is a common practice for new townhome projects where it can be accommodated, and represents progress from the garage-front homes that were built on Wildey about 20 years ago.

The Fishtown Neighbors Association has generally been receptive to modest infill projects over the last few years, so we don’t anticipate this proposal will generate much opposition when the RCO considers it next month. We might have preferred a bit more density, like we’ve seen with some other projects in this pocket, but four units with 1:1 parking seems like the right recipe for getting that precious zoning variance and actually getting something built here. Recognizing that, we’ll hope the project gets approved and look forward to four attractive new homes doing their part to help repair a block that was quite literally sliced in half by the construction of I-95.


Leave a Reply