Just a couple weeks ago, we visited 23 West, a new seven-story building on Girard Avenue that’s nearing the finish line. This building is exactly the kind of project we love to see in this town; it replaced a one-story commercial building, has a bit of height, includes two new commercial spaces, and its 107 units provide some terrific density just steps away from an El station. Please, universe, give us more projects like 23 West!
Shh… keep quiet and listen for the answer from the universe. Yes, we hear it! Right around the corner, developers are planning something at 1233 N. Front St. which compares quite favorably to the 23 West project. In recent years, this 5,300 sqft parcel was home to a couple one-story garage structures which were used for auto detailing and a tire shop. Those buildings were demoed back in 2023, and now the property is sitting vacant. But (hopefully) not for long!


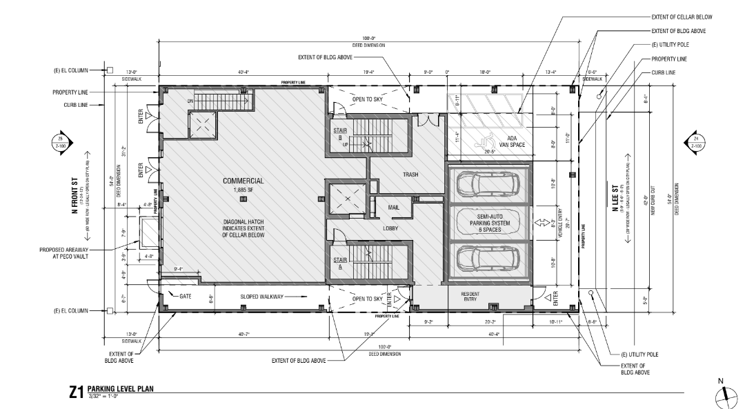
At the end of June, developers presented plans to Fishtown Neighbors Association for a seven-story building with 24 apartments and ground-floor commercial space. As you can probably guess from the fact that there was an RCO presentation, this project requires some zoning variances. In short, the project is taller than is allowed, takes up more of the lot than is allowed, and doesn’t provide the required number of reservoir parking spots. The community narrowly voted in support of the project, and we honestly can’t think of why anyone would vote in opposition. There’s plenty to like when considering this proposal.



Plans from Woodcock Design show a gray brick facade running all the way to the top of the building, so Septa riders will enjoy another cool contemporary building – but we’re guessing tenants will have to keep their blinds down for privacy. While many of the new construction projects we’ve seen of late have erred on the side of maximum density and minimal unit size, this project takes a different approach, with all of the 24 apartments providing two bedrooms, including four bi-level units. Despite the lack of a second reservoir spot, there will still be 7 parking spots accessed from Lee Street, some of which will be provided below grade and accessed by a car elevator. So that’s cool. Finally, the building will include a roughly 2,000 sqft commercial space on the first floor which will also have use of part of the basement.

With the community process ostensibly wrapped up, the project will appear at the ZBA in September. We will obviously be rooting for approval for this project, which is not only compatible with 23 West around the corner, but also El Rose, a southern neighbor we told you about back in 2017. And yes, a new building at 1233 N. Front St. would block some natural light from the courtyard at El Rose, but them’s the breaks and nobody could have reasonably expected the property to remain underused or vacant forever. Assuming the ZBA gives the thumbs up, look for the vacant lot to disappear sometime next year.

Leave a Reply