It was less than a year ago that we told you about plans for a new 19 unit mixed-use building at the site of the former Kensington Community Food Co-op. But earlier this week, we discovered a permit for a revised version of this project. Named ‘The Lehigh Building,” the project at 2666-72 Coral St. will still rise to five floors, with apartments and ground floor commercial.

MediaStream (7)
Southwest corner of Lehigh and Frankford Avenues in 1915
IMG_3344
Current view

While the previous version of this project included 19 units, the latest and greatest iteration includes 26 units. The developers have made this change by taking advantage of the Mixed Income Housing Bonus in the Zoning Code, which allows additional density with the inclusion of a few affordable units. In this case, 3 of the 26 units will be rented at affordable rates for a minimum of 50 years. Despite the higher unit count, the building’s physical dimensions appear unchanged – presumably they’ll squeeze in the additional apartments by adjusting the size of some units. The renderings we previously shared from Ambit Architecture should still apply. The brick veneer and large glass windows will give the building a contemporary look while still referencing the more industrial heritage of the area.

2666-Coral-Street-Collage-01-1536x1026
Rendering of the approved Lehigh Building, next to the Coral House
2666-Coral-Street-Collage-02-1536x1028
A rendering of the Lehigh Building
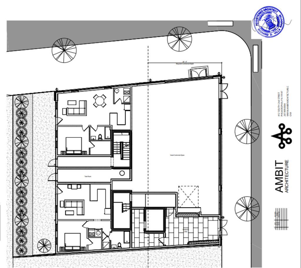
Screenshot 2025-03-11 5.15.13 PM
Ground level floor plans

While the commercial space won’t be huge, it’ll enjoy plenty of near neighbors who could patronize whatever business leases the space. The relatively new Coral House sits next door, Kensington Courts is just across Lehigh Ave., and there’s a chance we’ll see scores of new units across the street to replace a tire shop. It’s true that this building will sit at the end of the booming Frankford Avenue corridor, but number of newish apartments nearby means a lot more foot traffic than there was even a few years ago. On the other hand, two gas stations in the immediate area don’t exactly lend themselves to the pedestrian experience.

IMG_3343
Kensington Court, across the street
IMG_3340
View of the site from the adjacent gas station

The fact that this project is seemingly moving forward tells quite a story about the transformation of this area in a relatively short period of time. Turn back the clock half a dozen years and the site of the Coral House was a surface parking lot and the site of Kensington Court was a used car lot and junkyard. If it weren’t for these other projects, we’re not sure that the Lehigh Building would be moving forward. And we also have to wonder, had the Kensington Co-op opened its doors a few years later, might it still be around, given the additional density nearby? We’re not holding out hope that a new Co-op will be opening in the retail space of the Lehigh Building, but all these nearby units should mean an easier experience for whatever business opens here in the future.