Chestnut Hill is undeniably charming and adorable, sporting some of the most picturesque streets in the entire city. The historic architecture, cobblestones and mature trees can give the impression of a neighborhood frozen in time. And for one former gas station, the neighbors are wishing they could turn back the clock. The property at 10 Bethlehem Pike, just north of Germantown Ave., is currently in the midst of a prolonged disagreement about what the future holds for this trapezoidal lot.

Gather ’round everyone, it’s story time! The lot in question sits immediately to the north of the Chestnut Hill Baptist Church, the oldest church building in Chestnut Hill. Dating all the way back to 1834, the building was rebuilt in 1854, with the belfry and tower added in 1874. This historically designated building sits just to the northeast of the intersection of Germantown Ave. & Bethlehem Pike and strikes a gorgeous silhouette on the streetscape at this corner.

You’re not going to believe this, but things in the area changed once cars joined the fray. In fact, a Sunoco station sat behind this church on this controversial site for at least 60 years, forming a rather unusual pairing. A demolition permit was issued last year, and as you can see below, the existing buildings were cleared away. But what might be taking the place of this former gas station?



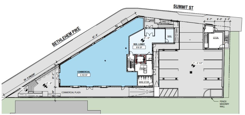
Per plans presented to the Chestnut Hill Community Association, Frankel Enterprises is proposing a 33 unit, mixed-use building, with 3,000 sqft of ground floor commercial, 8 car spaces, 12 bike spaces and a green roof. CosciaMoos is taking on design duties, offering a facade of brick and black metal bays on the unusually shaped lot. This project was to proceed by-right and received zoning and building permits in late 2021. So then, why exactly is this controversial? Let’s check out what’s proposed before we dip into the details.







Welp, the neighborhood didn’t exactly respond well to the project, and concerns arose nearly every step of the way. After plans were presented to the neighbors for feedback, a controversy around the zoning categorization popped up. After the zoning permit was issued, the CHCA and others appealed the permit, which was denied by the city late last year. Seemingly undeterred, the group filed a lawsuit in the Court of Common Pleas shortly thereafter, further delaying the by-right project. Currently, the developers are asking for an expedited hearing to decide upon the case…which the CHCA is also pushing back on.
For additional flavor, there is also the 10 Bethlehem Pike website that was created by the folks at the CHCA. The website speaks of the “immense,” “very tall, very dense” project that may “drive residents out of the city.” What it does not speak to is the fact that this lot sits just outside the borders of the Germantown Avenue Historic District and is replacing a gas station – hardly a fixture of the historic fabric. We understand concerns around the perceived encroachment to the neighbors, but this seems to us a bit much over 33 apartments within walking distance to two different rail lines. We doubt we’ll see an exodus from this amazing little neighborhood as the result of one building rising, but we are indeed anxious to see what the future holds for this site.
View this post on Instagram

Leave a Reply