Dox Thrash became one of the more interesting artistic stories to emerge from the city’s history, even though he wasn’t originally from here. Born in Georgia before spending time in Chicago and fighting in WWI, Thrash eventually found his home in the City of Brotherly Love, where the skills he learned at art school were eventually applied during the Great Depression. The federal government funded the Works Progress Administration (WPA), which gave millions of folks an opportunity to earn some money while also benefiting the public at large. Thrash eventually went on to create the Carborundum printmaking technique, which helped define the raw, gritty, deep textures that are present throughout his work. Check out the wonderful video below which shows off some of the amazing work and speaks more to Thrash’s wildly interesting life.

Dox Thrash found a home base right near the border of Sharswood and Brewerytown when he set his roots in Philly, and his house at 2340 Cecil B. Moore still stands today. This building is historically designated, meaning that any work on the building would need an OK from the Historical Commission. And wouldn’t you know it, that’s exactly what’s happening, thanks to a recent submission. As you can tell from the photos, this building has most definitely seen better days compared to its current dilapidated condition.

DoxThrash-01
A view of the Dox Thrash House at the southeast corner of 24th St. & Cecil B. Moore Ave.
DoxThrash-02
Is it a little drafty in here?
DoxThrash-aerial
An aerial shows that the building in need of some major TLC

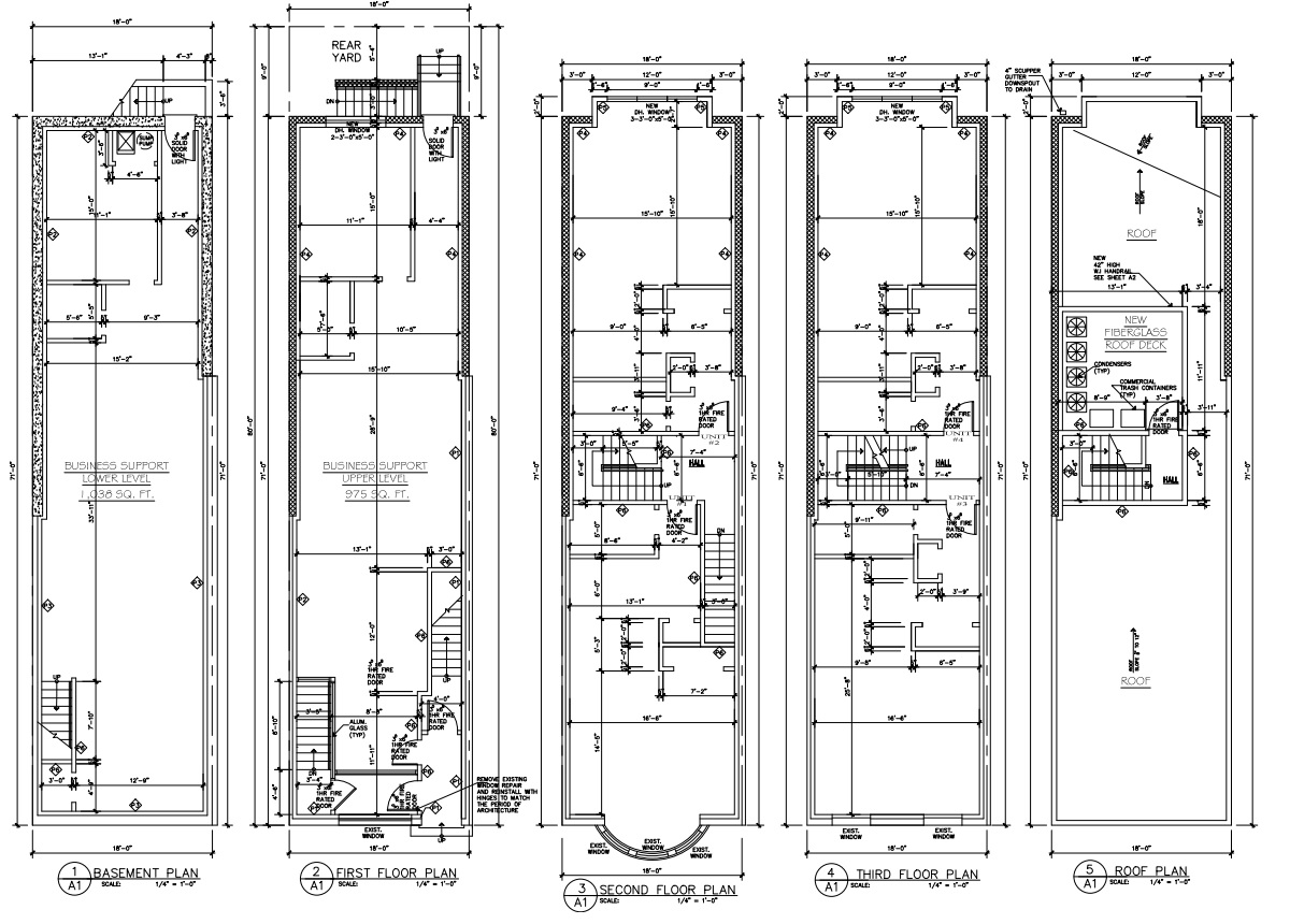
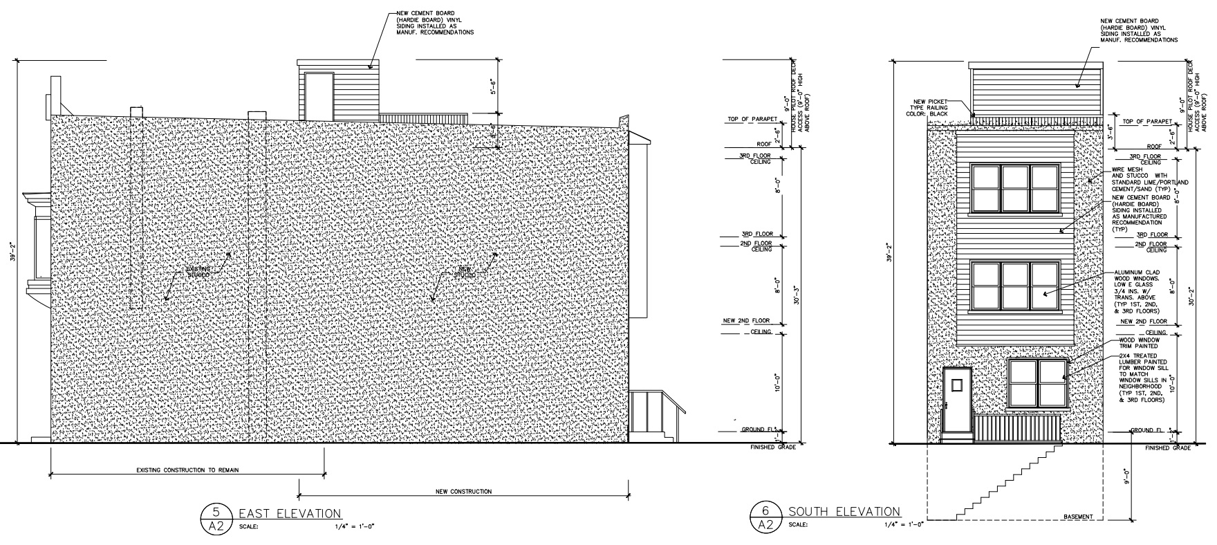
We are very excited to say that this gorgeous building should soon be coming back to life. Plans call for a total rehabilitation of the building, restoring its original ground floor storefront while replacing windows and refurbishing all of the other front facade flair. Additionally, the footprint of the building will be extended, with an addition adding considerable depth to the existing structure. A roof deck will be accessible via a pilot house, though these additions will all need to be approved before things move forward. We aren’t exactly sure when that will be however, as this proposal mysteriously disappeared off of the Architectural Committee’s agenda after being briefly posted. While we don’t have any renderings, the plans give us a pretty clear indication of what (we think) is to come.

DoxThrash-floorplans
Floor plans shows three floors, with a basement and a roof deck as part of the addition
DoxThrash-elevations
Side and front elevations show the new side and back of the building

We are thrilled to see this project making steps forward which will bring this building back from its current unfortunate state. Speaking of states, Pennsylvania is also helping this move forward, having issued a $340,000 grant through its Redevelopment Assistance Capital Program (check out our recent Top Ten RACP Countdown for more). These funds should help this very exciting project get off the ground. Cecil B. Moore Ave. has some of the most attractive architecture in the city, as we even covered this building’s neighbor back in 2018. We can’t wait to see this little-if-important sliver of architectural and artistic history come back to life.