A couple of months ago, we told you about the four homes planned for the large, vacant lot just a little south of 7th and Bainbridge Sts., but we didn’t have any visuals to provide at the time. The developer, as it turns out, is not Richard Santore as we previously reported, but BILD Properties, a company we believe to be owned by a pair of realtors in the neighborhood. Thanks to a commenter for the heads up about that. Public record shows that BILD purchased the lots for $925K in September. Construction activity has been underway over the past few weeks, and yesterday we spotted footers prepared for four foundations.

The lots, from a few months back

Large hole in the ground. Photo taken yesterday. In the rain.

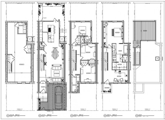
Thanks to the good people at Moto Design Shop, we’re now able to share some floor plans and renderings for these soon-to-be-built homes.

Aw geez

Interior view. Looks very nice. We dig the mint-colored wall

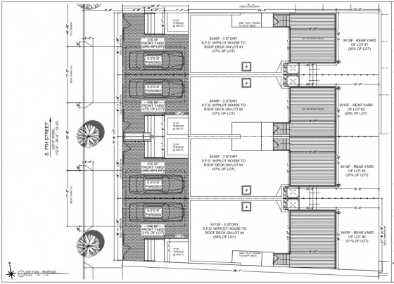
Hey, it’s setback homes with front yard parking! According to multiple sources, this was requested by the neighborhood. The unfortunate result here is homes that look a little out of place, and some life is taken off the street. The garage-front entrance to Kenilworth St. immediately to the south might make the front yard parking a little more palatable, but not by much. From the looks of the interiors, the homes will be lovely and we imagine they’ll sell pretty quickly.

The front elevation, but you don't really notice the setbacks

Site plan, shows the front yard parking clearly

That's a lot of house. And some massive roof decks. We like the layout of the 2nd floor front bathroom.

In general, this development is definitely an improvement over a large, curiously empty lot in a prime location. We’re just not thrilled about the cars out front.

Out of curiosity, is this preferable to a garage front home? Rear yard parking is obviously everyone’s first choice, but when that’s not possible, do people prefer garages, front yard parking, or no parking at all?

Let the debate begin!