Just to the south of our most recent West Poplar update is yet another rapidly changing triangle of development in the shadow of the Divine Lorraine. The intersections of Ridge Ave., 13th Street, and Wallace Street create a small triangle in the city grid, and looking at an aerial from just a few years ago, things were indeed pretty bleak here until quite recently.

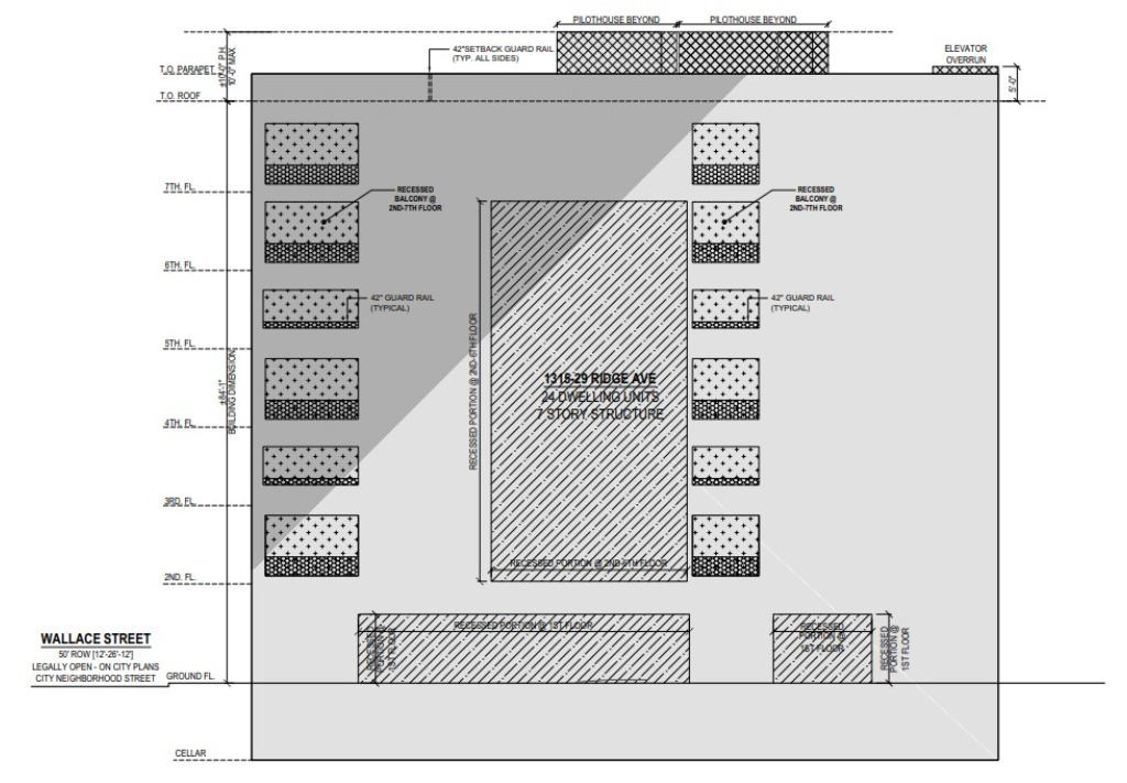
The property 1315 Ridge Ave. makes up the northern section of this group of properties that were nearly vacant until recently. We made our way here back in 2020 when things were just getting started on a smattering of quadplexes that were planned on the corner. When we returned this past May to check out the site of a planned seven-story building, it was very clear how much progress had already been made.





While there’s no visible work on the corner building as of yet, it received building permits last month, meaning that it’s all systems go once the developer is ready to start (we will miss that evergreen standing stubbornly proud on the corner still, though). This would be the final step to completely filling in the area, as the other corners are either in progress on already wrapped. At the southern portion of the property, the final quadplex is going up, with three surface parking spaces taking the place of the corner lot that’s currently at grade.



The northeast corner at 13th & Wallace is completed, as this was where the project originally started in its initial phase. The contemporary design from HDO Architecture (who has designed all of the buildings on the triangle) is most readily apparent here, with masonry ground floors giving way to gray metal paneling on the upper floors.

Between this and the Residences at Park Avenue just to the north, we’re looking at around 100 new residents where there had previously been zero. It will be interesting to see which of the other properties close by will be the next development domino as this area continues to transform.

Leave a Reply