Just as housing for the living shapes the built environment of our cities, so too does housing for the deceased. It might be a bit macabre, but learning about cemeteries can help us learn about history of many neighborhoods in Philadelphia. Take, for example, the massive Cathedral Cemetery in Mills Creek.

As the local Catholic population swelled in the mid 1800s, the Archdiocese of Philadelphia purchased a farm at 49th & Girard, on the outskirts of West Philadelphia, for a new cemetery. It was eventually dubbed Cathedral Cemetery, since it helped finance the construction of the Cathedral Basilica of Saints Peter and Paul in Center City. When the cemetery was founded, the surrounding area was sparsely populated. But by the late 19th century, many of the surrounding blocks filled in with dense housing to accommodate Philadelphia’s growing population. Next to the cemetery, the Archdiocese built Our Mother Of Sorrows Church in the 1870s, along with a collection of other buildings used by the Church.


This community has suffered from serious disinvestment since the middle of the 20th century, and the 4900 block of W. Girard has been hit especially hard. By our math, there are 55 parcels on this extra-long block, but only 10 buildings. Various City agencies own large swaths of vacant land on the block, and the Redevelopment Authority released an RFP in 2018, seeking proposals to redevelop those lots.



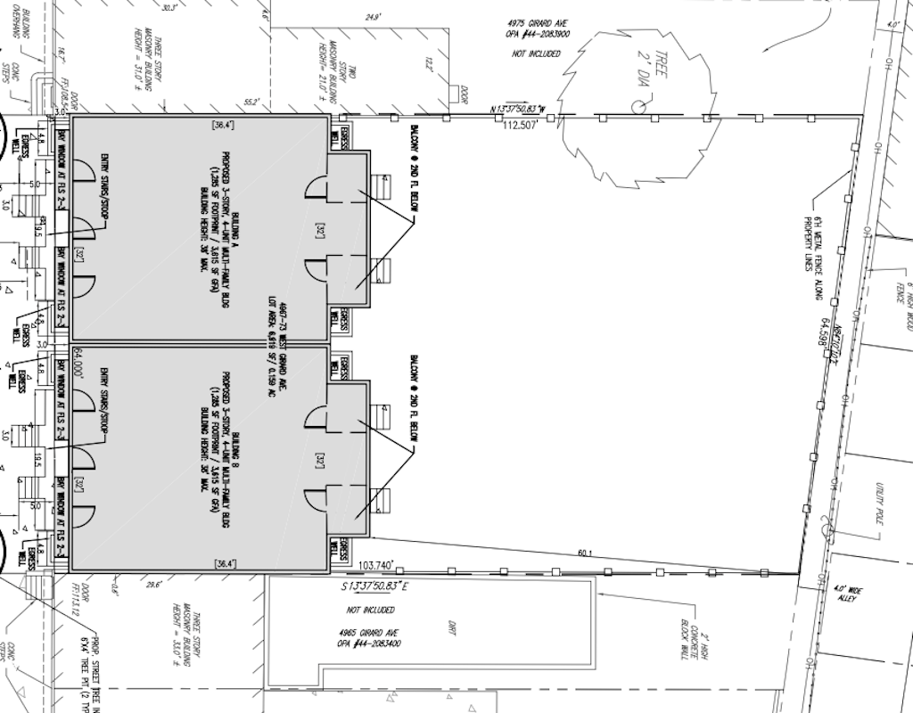
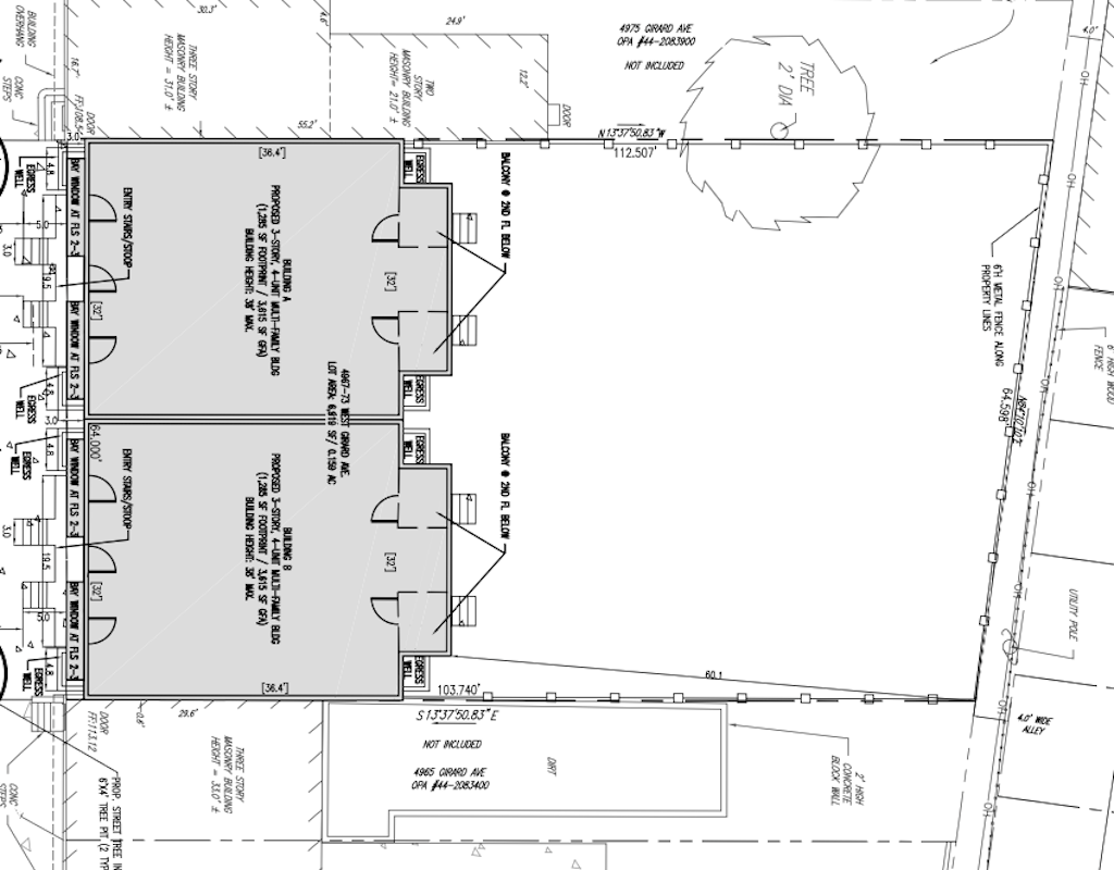
Gaudenzia, a local non-profit that focuses on helping folks with substance use disorder and co-occurring mental health disorders, won at least a portion of the RFP, and is currently pursuing a 40-unit affordable project called Gaudenzia Cathedral Homes. The project calls for a trio of quadplexes at 4947 W Girard Ave., two quadplexes at 4967 W. Girard Ave., and a 20-unit apartment building at the corner of Saint Bernard & Girard. Units will be available to all qualifying households, and 50% of the units will be reserved for individuals recovering from addiction. In addition to nearly $1.6 million of low income housing tax credits (LIHTCs), the project has also secured funding from the National Housing Trust Fund, and a state housing tax credit for another million.



Looking at the renderings from Mdesigns, it looks like the project will use materials that will make these affordable units indistinguishable from market rate development. We appreciate the mix of a larger apartment building with smaller apartment buildings, which will provide different residential offerings along with a more varied experience for people walking down the street. We’re thrilled that this project will add affordable units while specifically targeting a subsection of the population that really needs the assistance. Finally, the density here is a big step up from the modest rowhomes that dominate the Land Bank’s Turn the Key Program, and density is the only way that this city is going to put a dent in its shortage of affordable units.
All of that being said, this project is leaving a whole lot of meat on the bone. From a planning perspective, the City has done a disservice to the block and to Gaudenzia by not pursuing eminent domain for the seven privately owned properties that break up this redevelopment. Sure, 40 units is a step in the right direction, but adding the missing seven lots to the assemblage would have created a combined lot measuring nearly an acre, and would have allowed for something much more significant in terms of size and scale. Depending on unit sizes and desired open space, such a site could accommodate between 80 and 140 units over four floors. That’s… way more than 40.
Even without the City helping to make the project more efficient, we wish that this project was taking a more aggressive approach in terms of density. The apartment building could maintain its current footprint and add a floor, only needing to use a zoning bonus for low income housing to avoid a variance. In addition, the project includes rear yards that are outlandishly large. At 4967 W. Girard Ave., for example, the project calls for over 60% open area in the back. The standard in the city is more like 20%. While these are unusually deep lots, we still contend that the development team could have gone with something skinnier and deeper, utilizing more of the lots and increasing the density.

So yes, we’re happy that these long vacant lots are filling in and that West Philadelphia is picking up some affordable units, but we are having a hard time getting over just how few units are actually getting built here relative to the sizes of the vacant lots. Market rate housing is popping up further west as greater University City expands, so this missed opportunity to add more affordable units hurts today and will hurt even more in the future. Some possible silver lining: we don’t know what’s happening with the City owned lots on the eastern side of the block. We can only hope that this contiguous property will be redeveloped more efficiently, in a way that provides more substantial density and creates as many new affordable units as possible.

Leave a Reply