Powelton Village, which sits immediately north of Drexel‘s campus in West Philly, has some of the coolest architecture in the entire city. Featuring intricately designed and generally well preserved residential buildings, this area was just designated as Philadelphia’s newest historic district, becoming the largest protected area since Old City back in 2003. As this area is now historically designated, any new developments or renovations to the exteriors of existing buildings need to get the OK to move forward from the Historical Commission, which has binding power over building design. Ditto any demolition of contributing buildings in the district. For the project at 3401 Hamilton St., these new boundaries are likely to result in some changes.




This corner has plans for an upgrade, which we know about thanks to a submission to the Historical Commission – something that would not have happened prior to the creation of the historic district. Gnome Architects presented plans for a 15-unit, mixed-use building for this corner, adding substantial density to this formerly auto-friendly business. The CMX-2 zoning allows for the inclusion of commercial space, but the zoning and the historic needs of the area split after that. A rectangularly-shaped massing is proposed here, in clear contrast with the stepped-back and more intricate forms of the other adjacent buildings. Brick is planned to be prominently featured on the main facades, with an awning wrapping around the building to cover both the residential and commercial entrances.



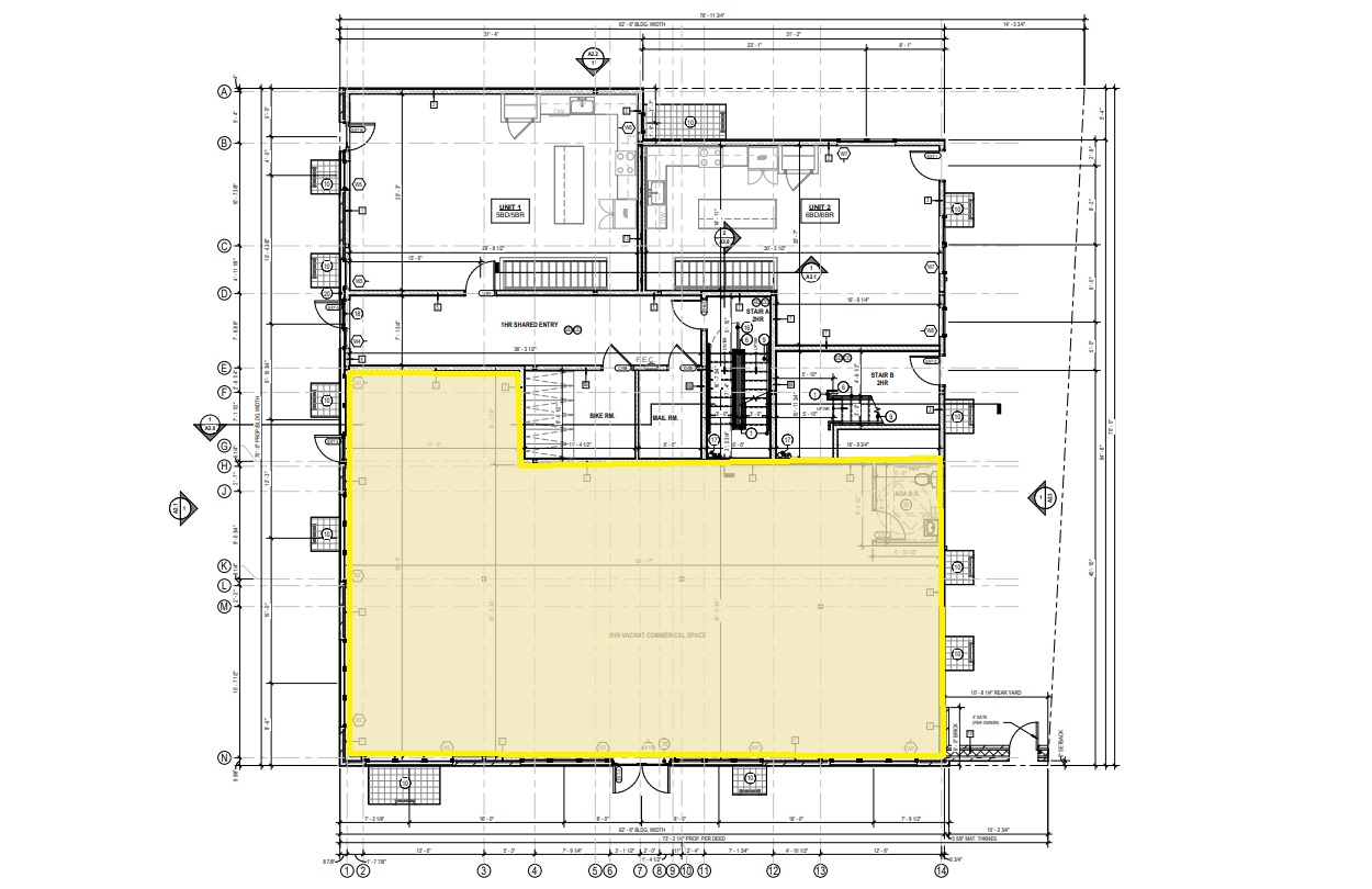
While this building would likely get a standing ovation in other locations, the Historical Commission nixed the current design (you can watch the video here), as it doesn’t conform to the look and feel of the other building in the area, so expect to see a redesign and a new submission sometime in the future. The exterior is likely to change, but the interior figures to remain more or less the same. While the first-floor plans seemed “normal” to us at first, with ample commercial space along the more commercial-friendly 34th Street, when we checked a little more closely, we noticed the highest bedroom count of any recent project we can remember.


That’s right, folks: the two ground-floor units will feature 5 beds/5 baths and 6 beds/6 baths respectively. While we’ve seen some three- and four-bedroom units recently, we can’t remember any units exceeding that size. Given the project’s proximity to Drexel, we’d imagine these units would be targeted to college students, and suspect that the unit sizes are dictated by the density limitation from the zoning of the property. In other words, we’d probably see more units with fewer bedrooms if that developers were able to pursue such a project as a matter of right. That being said, perhaps these jumbo units will rent even more quickly than more typical units, as they will definitely fill a niche.
The narrative to date goes to show the impact that historic designations can have on a project. The designers stated they weren’t aware of this district when they started their design, so we’d imagine that these initial plans would have looked substantially different if that was the case. As such, the development team has to go back to the drawing board, spending time and money to create a more appropriate project. We hope that these stricter requirements lead to a more contextual building, but we still feel a pang of regret that a project won’t be moving forward here with any sort of speed.

Leave a Reply