Zoning Board of Appeals hearings can often be the first time the public learns about new proposed buildings in Philadelphia. Last week though, the exact opposite thing happened when we learned that a much discussed mixed-use project in West Philly won’t be proceeding, at least for now.
When we last checked in on the southeast corner of 41st & Walnut, we told you that Campus Apartments was planning to demolish a low-rise apartment building and a former fraternity house, intending to combine them with a small surface parking lot to build an 11-story, 135 unit building with ground floor retail and a floor of offices. While we were sad to learn that these buildings would be torn down, we understood the appeal of building such a project at this location. This stretch of Walnut Street has seen a good amount of new construction recently, including at the former McDonald’s at 40th and Walnut, 3901 Walnut Street, and multiple projects nearby on Chestnut Street.



Indeed, the developers demoed the apartment building in question. We figured it was only a matter of time before the former fraternity house came down as well. But if you visit the site today, you’ll see that the building is very much still standing. So… what gives?



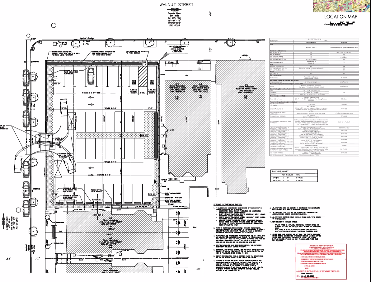
At the aforementioned ZBA hearing last week, the developers cited general economic reasons to explain their decision to put the project on temporary hold. In the meantime, Campus Apartments is looking to utilize the newly vacant land for employee parking, hence the ZBA hearing. VP of Development Jonathan Chopp noted that constructing a parking lot would include adding modest landscaping to the site. In fact the presence of a landscape buffer along Walnut Street was one factor noted in the letter of support for this variance from the Spruce Hill Community Association.

Emphasizing the intended temporary nature of the proposed surface parking lot, a proviso limiting the use of the lot for non-accessory parking for only 3 years seemed acceptable to the property owners. One consideration for Campus Apartments will certainly be a desire to proceed with the project with the current permits before they expire, as they were filed before mandatory inclusionary zoning was implemented in much of University City. While a few employees will certainly appreciate no longer needing to park on the street or in a garage, Campus Apartments likely wants to avoid the situation where they’re mandated to set aside 20% of residential units aside for below market rate housing.
With this project now delayed, we have to wonder whether this is simply a bump in the road or perhaps the beginning of a broader slowdown as this pocket of University City absorbs a substantial number of new units. Supporting the former is a proposal around the corner. Just before Labor Day, zoning permits dropped for a 23 unit building at 4206 Chestnut Street. This project would seem to indicate not only the continued interest in further development in this neighborhood, but also the viability of projects subject to West Philadelphia’s inclusionary zoning requirements (5 units are to be set have restricted pricing). Then again, the project is listed for sale with a zoning permit, so it’s possible we’ll never actually see it get built.
With the support of the local RCO and the Planning Commission, it seems likely the ZBA will support the temporary expanded surface lot at 41st & Walnut, with the final decision expected next week. It’s not atypical for the ZBA to allow similar temporary variances to allow surface parking on sites prior to construction, with the caveat that we’ve seen extensions granted in the past. Given who owns the property though, we are optimistic that we will see this project move forward, perhaps even before the three-year variance expires.


Leave a Reply