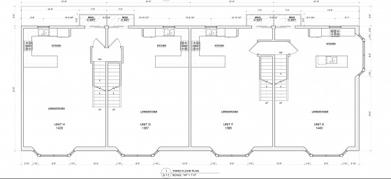
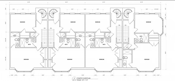
We’ve recently gotten word that a new building will soon be going up on the long-vacant corner of 17th and South Sts. This corner, made up of 5 lots and currently overgrown with vegetation, was recently purchased from Crazy World Entertainment, who had owned the lots for the past six years. The building, with a footprint that covers all 3000+ sqft. of the parcel, will have commercial space on the first floor, four one-bedroom condos on the 2nd floor, and four bi-level two-bedroom condos on the 3rd and 4th floors. The one-bedroom condos will start at $225K and the two-bedroom condos will start at $325K. The developer is Eugene Bukh, of PP Development. We don’t have any word yet on a possible tenant for the commercial space, but we’re keeping our ears open. Anyone have any outstanding suggestions for us to pass along? How bout a Wegmans?






Leave a Reply