We have a handful of memories involving 514 South St., all of which date back to a time that Dairy Queen made its home in this one-story building. By the end of its time at this address, the DQ was kinda gross, so it was no surprise to us when it went out of business. In the last few years, a couple of businesses have rotated through the space, including a bagel place and a pizza spot. Today though, the building is gone and a hole in the ground has appeared in its place. Ditto the surface parking lot next door.

A few years ago

Current view

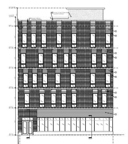
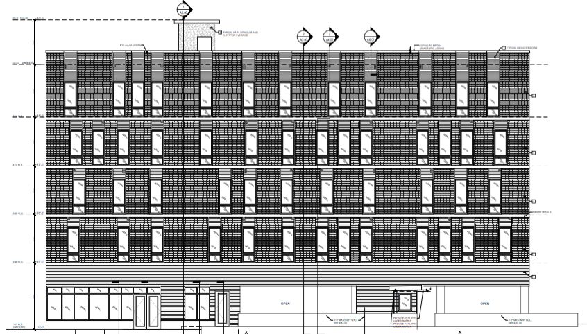
Developer Haffey Homes bought the properties last year, and is now moving forward with a plan for a five-story mixed-use building. The property has frontage on South Street, Randolph Street and Kater Street, and covers 7,200 sqft, so it has the potential to accommodate this sizable building. The plans call for 32 one-bedroom rental apartments on the upper floors, with a retail space and 12 parking spots on the ground floor. The developer is ideally looking for a restaurant tenant for the commercial space, with 1700 sqft available on the first floor and another 1500 sqft in the basement. Harman Deutsch has done the design work.

Elevations drawing of the front of the building

Elevation of the side of the building

Color drawings of the storefront

Over the last few years, South Street has seen a number of similar buildings arrive on the scene. On South Street West, we've seen new buildings on the 1400 and 1600 blocks, though a plan at 2300 South Street fell apart. East of Broad Street, the Twelve40 project is now finished with vaping coming soon, and a pair of smaller buildings were finished last year on the 1100 block. And of course, let's not forget Southstar Lofts at Broad & South. With this project now moving forward on the 500 block, we're left to wonder where the next big building will pop up along the length of South Street.

Disclosure: The developer for this project is affiliated with OCF Realty, Naked Philly's parent company.