Less than three weeks ago, we made some predictions for the year to come, naming a few neighborhoods where we expect to see development news would be come in hot for the year ahead. Old City was not on this list. But lo and behold, we find ourselves back in this area after checking out other exciting stuff happening here, in the neighborhood with most history per square foot in town. In fact, 312-18 Race St., former home to DiNardo’s Seafood and two other non-descript buildings, sits seconds away from another couple of projects we recently visited. This is all a long way of saying that a lot is happening all around this trio of structures on the south side of the block.



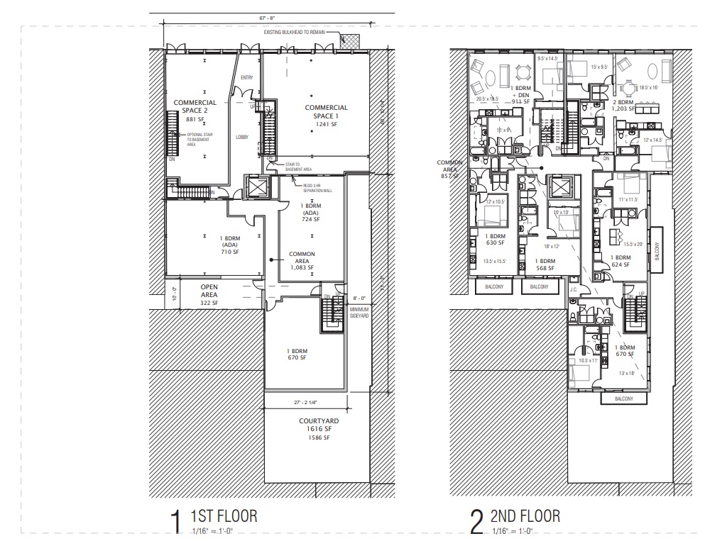
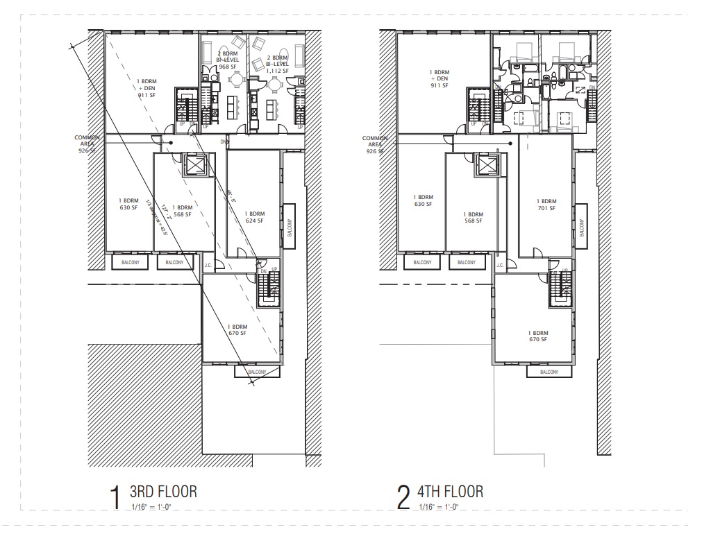
We visited 312-18 Race St. almost exactly two years ago, when we told you about plans that would very much change the look and function of the property. The historically protected, four-story brick building would remain, with the 1950s buildings to the west to be demolished. In their place would rise a four-story building that would echo the existing one, with a six-story addition added to the back. This would require removing the backs of the buildings, creating room for a 26-unit building that would feature two commercial spaces along Race. Since that time, we had seen and heard exactly nothing on the plans from Studio 111 Architecture. And then yesterday happened. And here we are today.





So, the update here is actually an unusual one: a zoning permit was issued this week to allow for parking access for this project off site…immediately next door at the parking garage. As such, it seems as if we could see this move forward soon, once other demolition and construction permits are in hand.

We are loving the sign of movement here, as these three buildings have sat stubbornly vacant as the area around them has rapidly evolved. The foot traffic in this part of town has changed tremendously over the last several years thanks to hundreds of new units coming online. As a result, more commercial and retail options are springing up, while mixed-use projects are changing the streetscape in all directions. We think it is wonderful that more people are able to live in such a cool and historic area, and we hope that Sassafras Market down the street makes it back soon after their unfortunate fire several months back.

Leave a Reply