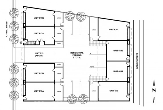
As if Northern Liberties doesn’t have enough high-end housing developments going up right now (we’re looking at you, Stable Flats, houses at 2nd & Green, Orkney Street homes, etc etc etc), we’ve learned about yet another project, tabbed the Green-Nine Townhomes. Located at 613-25 N 3rd St., these nine new homes will replace part of a parking lot, with half of the development facing 3rd Street and the other half facing some currently under construction homes on Bodine Street.

Current view
Developers 600 Associates LLC went before NLNA earlier this year, and tightened up their proposal in the months that followed. We were able to get a site plan and renderings, designed by Canno Architecture, the same people who did the design work for the Artisan Townhomes.

Site plan

3rd Street frontage

Bodine Street frontage
Currently, only one of these properties, the unit above the parking entrance, is listed for sale at $449,900. We’re guessing that the other units will soon come on the market, perhaps at a slightly higher price. The units will range in size from 1,792 sqft to 2,242 sqft, and all have three bedrooms and 2-3 bathrooms. Each will also come with one parking spot.
The rendering of the homes fronting 3rd Street is perhaps a little misleading, as it shows existing buildings on either side of this development. Looking at the address, as well as the NLNA meeting minutes, this seems impossible, as the existing parking lot extends another four addresses to the south. It appears as through another development is in the works for 605-11 N 3rd St., and we’ll pass along info about this as soon as we can.
And on a completely unrelated note, for people who live in the area: Can anyone tell us what’s the deal with this building, across the street from this upcoming development? We’re kind of at a loss.

What is this place?

Leave a Reply