About a month and a half ago, we told you that a big change was in store for 416 Spring Garden St., a 1.5 acre property which is currently home to a one-story building and a surface parking lot. The building has been the headquarters of Northeast Treatment Centers since at least the mid-1990s, offering crucial services to the community in terms of mental health, child support, and addiction recovery. While the mission of this organization is incredibly important and its services critical, the use of this site for a one-story building is far from highest and best, given the location.

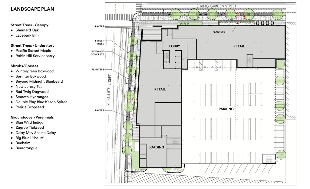
We wrote our story based on a presentation at NLNA, where the developers went through their plans for a 137′ tower with 330 apartments, 87 parking spaces, and retail on the first floor. The project is permitted as a matter of right, but still needs to go before the Civic Design Review board before it can receive permits. That CDR process, while non-binding, requires a community meeting, hence we found out about the project in the first place. Also thanks to CDR, we now have renderings of the proposal and also a better idea of how it will lay out. We should mention, SCB did the design work here. Check ’em out:



This sweet looking edifice will rise 12 stories, and the plans call for a reduction in the unit count to 329 apartments. There will also be a little over 15K sqft of retail space, with sizable spaces (which could be subdivided) on both 5th Street and Spring Garden Street. That’s some pretty significant retail space, and we’ll be fascinated to see what kinds of businesses open here. We’ll give you a dollar if the Spring Garden Grille indeed opens up here, as the rendering predicts. In order to accommodate 87 parking spots, most of the rest of the first floor will be dedicated to parking, though those parking spots will either be covered by a portion of the apartment tower or the amenity deck on the 2nd floor.
As we indicated before, this new building won’t rise in a vacuum, but will be joined by several additional apartment buildings south of Spring Garden Street, along with a tower directly across the street, on the northwest corner. That last project will add another 382 units, along with an Amazon grocery store, as an amenity for the neighborhood and of course, residents of the multiple new buildings in the area. The timeline for that tower, incidentally, is surely delayed somewhat, after the discovery of an old burial site on the property. According to several reports, the developers are currently working with the Orphan’s Court on a plan to relocate the remains at the site with respect and sensitivity. This will surely take a bit of time, but once those efforts are finished, look for one of the worst shopping centers in greater Center City disappear at long last.

Leave a Reply