Northern Liberties once held its own against Brewerytown as the brewing center of Philadelphia during its industrial heyday. Ortlieb’s Brewery, for example, operated in the neighborhood from the 1860s up until the early 1980s – a nice little 120-year run. Ortieb’s Bar at 847 N. 3rd St. is one of the few reminders of what once stood here on this block. Which brings us to the properties at 823-29 N. 3rd St., which are just south of where the brewery stood and where a slice of remaining industrial history could be yours. You might recognize the gorgeous art at the top of the building, so let’s re-familiarize ourselves with the property.

IMG_7975
The art on the southern facing side of the larger building at 823-829 N. 3rd St. always catches our eye
IMG_7974
A view of the older industrial building and attached residential home
IMG_7976
823-29 N. 3rd St., with courtyard access through the garage in between

As you may have gathered, this property is currently for sale and is a great candidate for adaptive reuse. This IRMX-zoned property allows for both residential and commercial uses here, and along with the great condition, wonderful location and very cool bones and set-up, our eyes immediately lit up with the possibilities of what could be in store for this current resident and art studio. Additional information is available thanks to a Loopnet listing, so let’s check out some of the details for these properties below.

823N3rd-09
An aerial of the site shows the layout
823N3rd-01
3D visual gives a better idea of the size and scale of the courtyard and buildings
823N3rd-05
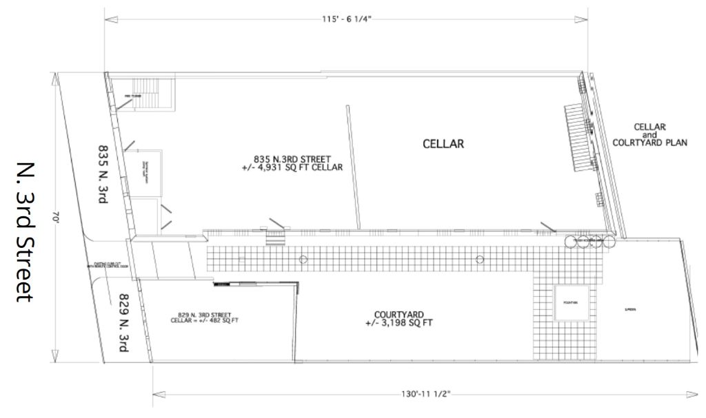
Site plan provides more specifics on size of buildings included
823N3rd-06_ccexpress
Close-up of the art and larger building from the roof deck giving dreamy vibes
823N3rd-07_ccexpress
Nearly 4,000 sq. ft. of open space on each floor in larger building
823N3rd-08_ccexpress
View of the courtyard shows the massive potential

Pretty awesome, right? We can envision a future where this is converted to residential use, with apartments or condos in the larger building along with ground floor commercial and a single-family home in a refurbished smaller building. A refreshed courtyard could also be a rather enticing oasis for this part of the city or it could be a source of additional building space. And there is definitely plenty of momentum in the area, as the recently demolished lot at 817 N. 3rd St. can attest to. Permits have been pulled for 48 units on six floors to go up here. Work hasn’t started yet, but a rendering on-site gives us a little glimpse of what’s to come.

IMG_7973
817 N. 3rd St. cleared away and ready for construction
IMG_7972
On-site rendering makes us think this will match its neighbor

This sits immediately to the north of another project we covered back in 2019. We told you then how Atrium Design was bringing… 48 apartments over six floors. And wouldn’t you know it, that’s who is handling the project we just told you about, so something very similar may rise here. Just up the block on the corner of 3rd & Poplar, another large project we reported on in 2018, also from Atrium Design, is close to completion.

3rd-from-north-along-3rd
Rendering of the large project on the southwest corner of 3rd & Poplar just up the blook
IMG_7970
Current view looking northeast from 3rd St.
IMG_7976
823-29 N. 3rd St., with courtyard access through the garage in between
IMG_7977
The current view looking pretty similar, save for the powerlines

Northern Liberties is absolutely teeming with activity, even in areas where it seems like more wouldn’t even be possible. The north end of the neighborhood is even more firmly establishing itself as one of the most exciting parts in the city. Let’s hope that some of the remaining vestiges of the industrial past remain as a reminder of one of the most important eras in the city’s history, including the available building next to Ortlieb’s.